Mixed Use
A substantial mid-terraced retail unit with residential accommodation to the first floor. The property benefits from plate glass display window to front elevation with the unit internally sub-divided to create three showrooms to ground floor and stores. There is a further retail area to the front of the unit on the first floor.
Floors throughout are of solid construction with ceramic tile covering. The property has a suspended ceiling with air conditioning units installed to the front two showrooms.
To the first floor (21A) is a self-contained one bedroomed flat occupied on a 12 month Assured Shorthold Tenancy subject to a rental of £495 per calendar month. This is accessed from the rear of the property. We are advised by the seller that the tenant has been in occupation for some time with rent always paid promptly.
We are informed by the sellers solicitor that with regards to the retail unit forming part of the Property, KLR Interiors Limited is currently in occupation pursuant to a lease which expires on 28 June 2039. However, the retail unit will be sold with vacant possession and a Deed of Surrender of this lease will be entered into on or before completion of the sale.
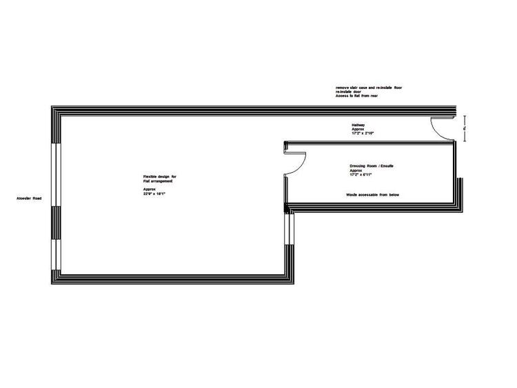
We feel there is certainly scope to reconfigure and utilise the additional retail area at the front of the premises on the first floor to create a second residential dwelling with separate access possible by creating a corridor leading to the rear of the property. The sellers advise that this was originally a residential dwelling in circa 2017.
The accommodation has been refurbished by the current owners to a high standard. We noted UPVC double glazing, modern fire doors, air conditioning and sunken lights. We are advised the property received a rewire recently.
To the rear of the property is a garage with roller shutter and access for the residential apartment above.
Location
The premises are located fronting the main Alcester Road through the heart of Studley village. The main centre of Redditch lies some 3 miles to the north. All local amenities are in the immediate vicinity including; shopping, transport and schooling, etc.
We are advised that rates payable are circa £800 per annum.
Interested parties are advised to make their own independent enquiries and inspect the legal pack.
Surface Water - Very Low.
Cavity wall, as built, no insulation (assumed) - Information taken from EPC.
Standard 23 mbps shows as available in this location
EE, O2, Vodaphone and Three show as available in this location.
Sky, Virgin and BT show as available in this location.
The council tax band for the flat is A.
Freehold. Part let/part vacant.
Auction Details
The sale of this property will take place on the stated date by way of Auction Event and is being sold under an Unconditional sale type.
Binding contracts of sale will be exchanged at the point of sale.
All sales are subject to SDL Property Auctions Buyers Terms. Properties located in Scotland will be subject to applicable Scottish law.
Auction Deposit and Fees
The following deposits and non- refundable auctioneers fees apply:
• 5% deposit (subject to a minimum of £5,000)
• Buyers Fee of 4.8% of the purchase price (subject to a minimum of £6,000 inc. VAT).
The Buyers Fee does not contribute to the purchase price, however it will be taken into account when calculating the Stamp Duty Land Tax for the property (known as Land and Buildings Transaction Tax for properties located in Scotland), because it forms part of the chargeable consideration for the property.
There may be additional fees listed in the Special Conditions of Sale, which will be available to view within the Legal Pack. You must read the Legal Pack carefully before bidding.
Additional Information
For full details about all auction methods and sale types please refer to the Auction Conduct Guide which can be viewed on the SDL Property Auctions home page.
This guide includes details on the auction registration process, your payment obligations and how to view the Legal Pack (and any applicable Home Report for residential Scottish properties).
Guide Price & Reserve Price
Each property sold is subject to a Reserve Price. The Reserve Price will be within + or - 10% of the Guide Price. The Guide Price is issued solely as a guide so that a buyer can consider whether or not to pursue their interest. A full definition can be found within the Buyers Terms.



















