Commercial Property
Residential conversion or development opportunity subject to planning consent. Currently fully let by way of FRI lease to 02 March 2027 (Tenant has served a break notice to determine the Lease on 03 March 2025). Currently producing £29,500 per annum. Attractive period building providing 10 well appointed offices over ground and first floors with kitchens, WCs and attic storage. The vendor has produced various sketch schemes for conversion to 19 HMO bedrooms or extension and conversion to 15 apartments, or 33 Studios. No planning has been submitted and parties are to rely on their own Due Diligence. Situated in 0.28 acres on a corner plot at the junction with Peet Street.
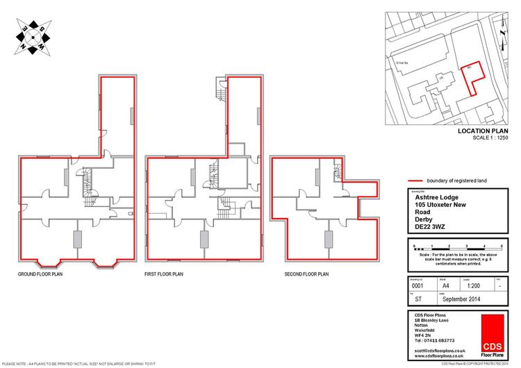
ACCOMMODATION
The accommodation has been measured on a Net Internal Area basis (NIA) in accordance with the RICS Code of Measuring practice. Areas have been taken from the VOA and should be confirmed.
Ground Floor 1,217 Sq.ft (113.06 Sq.m)
First Floor 1,445 Sq.ft (134.24 Sq.m)
Second Floor 276 Sq.ft (25.64 Sq.m)
TOTAL 2,938 Sq.ft (272.94 Sq.m)
PLANNING
We believe the property has been used under Class E (Commercial, Business and Service) of the Town and Country Planning (Use Classes) Order 1987 (as amended). All parties
should confirm the planning position with the relevant Local Authority. The vendor seeks unconditional interest.
SERVICES
All mains services are connected to the property. We are advised heating is oil fired. The agents give no guarantee in respect of connectivity or capacity and interested parties must rely on their own investigations.
RATING
The property is currently listed as an office and premises on VOA.gov.uk.
Rateable Value: £19,250
Rates Payable: £9,605.75
LOCATION
The property is located on Uttoxeter New Road (A516) less than a mile from Derby City Centre. The A516 is a main arterial route linking Derby City Centre with the outer ring road and Kingsway A38.
It is a mixed use residential and commercial location with a number of high street retail units and local conveniences situated along Uttoxeter New Road. Royal Derby Hospital is within circa 1.5 miles and occupiers at Kingsway Business Park include Sainsburys, Costa, Subway, Greggs, Marks and Spencers and more.
Excellent commuter and public transport links are close by.
What 3 Words Location: formed.wiped.below
Please be advised that whilst our joint agent has conducted an inspection, the auctioneers have not personally inspected the property. Prospective buyers are advised to make a viewing enquiry and any other necessary independent enquiries before placing their bid, as this will be binding.
These sales details are awaiting vendor approval.
Freehold. Subject to tenancy.
Auction Details
The sale of this property will take place on the stated date by way of Auction Event and is being sold under and Unconditional sale type.
Binding contracts of sale will be exchanged at the point of sale.
All sales are subject to SDL Property Auctions Buyers Terms. Properties located in Scotland will be subject to applicable Scottish law.
Auction Deposit and Fees
The following deposits and non- refundable auctioneers fee apply:
• 10% deposit (subject to a minimum of £5,000)
• Buyers Fee of 1.2% of the purchase price (subject to a minimum of £1,500 inc. VAT)
The Buyers Fee does not contribute to the purchase price, however it will be taken into account when calculating the Stamp Duty Land Tax for the property (known as Land and Buildings Transaction Tax for properties located in Scotland), because it forms part of the chargeable consideration for the property.
There may be additional fees listed in the Special Conditions of Sale, which will be available to view within the Legal Pack. You must read the Legal Pack carefully before bidding.
Additional Information
For full details about all auction methods and sale types please refer to the Auction Conduct Guide which can be viewed on the SDL Property Auctions home page.
This guide includes details on the auction registration process, your payment obligations and how to view the Legal Pack (and any applicable Home Report for residential Scottish properties).
Guide Price & Reserve Price
Each property sold is subject to a Reserve Price. The Reserve Price will be within + or - 10% of the Guide Price. The Guide Price is issued solely as a guide so that a buyer can consider whether or not to pursue their interest. A full definition can be found within the Buyers Terms.









