Commercial Development
A spacious corner property with accommodation over two floors.
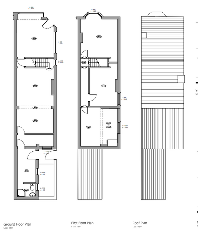
Planning Permission granted for conversion to two flats. 1x 2 bed and 1x 1 bed.
Planning Application Number 20221344.
The property is a former retail shop with ancillary accommodation to the rear and first floor. Now offered with vacant possession.
The property is well placed for the city centre, local amenities and public transport routes.
Scope for other schemes such has mixed use or house of multiple occupancy may be possible, subject to planning permissions.
4.53m x 3.75m
7.80m x 3.74m
3.28m x 1.85m
With W.C. Wash basin and shower cubicle.
4.10m x 3.73m
3.85m x 2.83m
Small enclosed yard to rear.
These sales details are awaiting vendor approval.
Freehold. Vacant possession upon completion.
- Heating Supply: Gas
- Electric Supply: Mains Supply
- Water Supply: Mains Supply
- Sewerage Arrangements: Mains Supply
On Street
Auction Details
The sale of this property will take place on the stated date by way of Auction Event and is being sold under an Unconditional sale type.
Binding contracts of sale will be exchanged at the point of sale.
All sales are subject to SDL Property Auctions Buyers Terms. Properties located in Scotland will be subject to applicable Scottish law.
Auction Deposit and Fees
The following deposits and non- refundable auctioneers fees apply:
• 5% deposit (subject to a minimum of £5,000)
• Buyers Fee of 4.8% of the purchase price (subject to a minimum of £6,000 inc. VAT).
The Buyers Fee does not contribute to the purchase price, however it will be taken into account when calculating the Stamp Duty Land Tax for the property (known as Land and Buildings Transaction Tax for properties located in Scotland), because it forms part of the chargeable consideration for the property.
There may be additional fees listed in the Special Conditions of Sale, which will be available to view within the Legal Pack. You must read the Legal Pack carefully before bidding.
Additional Information
For full details about all auction methods and sale types please refer to the Auction Conduct Guide which can be viewed on the SDL Property Auctions home page.
This guide includes details on the auction registration process, your payment obligations and how to view the Legal Pack (and any applicable Home Report for residential Scottish properties).
Guide Price & Reserve Price
Each property sold is subject to a Reserve Price. The Reserve Price will be within + or - 10% of the Guide Price. The Guide Price is issued solely as a guide so that a buyer can consider whether or not to pursue their interest. A full definition can be found within the Buyers Terms.














