Residential Development
**NO VAT PAYABLE**
A freehold former Public house located along High Pavement, Sutton in Ashfield.
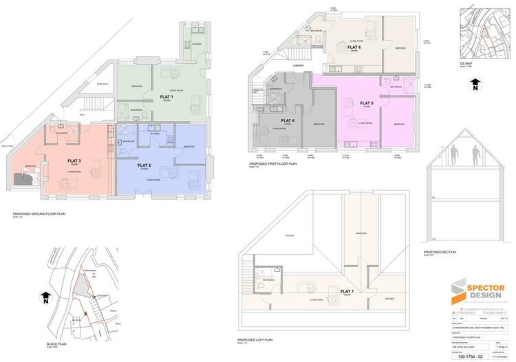
The property benefits from planning consent for the creation of 7 dwellings with the Gated Large back /side gated area to be used as a communal area. The development also benefits from off road parking along with cycle storage areas.
Interested parties are advised to inspect the planning portal of Ashfield District Council V/2024/0151.
We have been advised by the vendors that Western Power have already carried out works to supply to each unit and this can be verified on their website. Preparation works including stripping the building back to brick have already been carried out in readiness for the next stage of the build process.
We are informed on completion of the works the expected rental income could be in the region of £63,000 per annum, based on all units occupied, and the the project valuation would be in the region of £700,000. Prospective buyers are advised to make all necessary independent enquiries prior to placing their bid as this will be binding.
Location:
The property is located along High Pavement Sutton-in-Ashfield, close to the Idlewells Shopping Centre and Town centre with all amenities including banks, restaurants, supermarkets, cafes and takeaways, commercial units, local businesses and the college. The property is situated on a good bus route and close to the NHS Kingsmill Hospital and also benefiting from Sutton parkway train station and bus station within the town. We are informed there are electric car charging points close by. Approximately 3.5 miles east of Junction 28 of the M1 Motorway.
The town has also received the green light for regeneration itself awarded £62 billion part of the governments Town fund programme with the possibility for local grants available subject to applications.
Interested parties are advised to inspect the local planning portal for more information along with the legal pack for more information.
We are advised the site extends 501 Sq.M. Prospective buyers are advised to make a viewing enquiry and any other necessary independent enquiries before placing their bid, as this will be binding.
These sales details are awaiting vendor approval.
Freehold. Vacant possession upon completion.
Auction Details
The sale of this property will take place on the stated date by way of Auction Event and is being sold under an Unconditional sale type.
Binding contracts of sale will be exchanged at the point of sale.
All sales are subject to SDL Property Auctions Buyers Terms. Properties located in Scotland will be subject to applicable Scottish law.
Auction Deposit and Fees
The following deposits and non- refundable auctioneers fees apply:
• 5% deposit (subject to a minimum of £5,000)
• Buyers Fee of 4.8% of the purchase price (subject to a minimum of £6,000 inc. VAT).
The Buyers Fee does not contribute to the purchase price, however it will be taken into account when calculating the Stamp Duty Land Tax for the property (known as Land and Buildings Transaction Tax for properties located in Scotland), because it forms part of the chargeable consideration for the property.
There may be additional fees listed in the Special Conditions of Sale, which will be available to view within the Legal Pack. You must read the Legal Pack carefully before bidding.
Additional Information
For full details about all auction methods and sale types please refer to the Auction Conduct Guide which can be viewed on the SDL Property Auctions home page.
This guide includes details on the auction registration process, your payment obligations and how to view the Legal Pack (and any applicable Home Report for residential Scottish properties).
Guide Price & Reserve Price
Each property sold is subject to a Reserve Price. The Reserve Price will be within + or - 10% of the Guide Price. The Guide Price is issued solely as a guide so that a buyer can consider whether or not to pursue their interest. A full definition can be found within the Buyers Terms.

















