Terraced House
Situated within walking distance of Mansfield town centre, is a two bedroomed mid-terraced property, offered for sale with immediate vacant possession and requiring a scheme of improvement and modernisation.
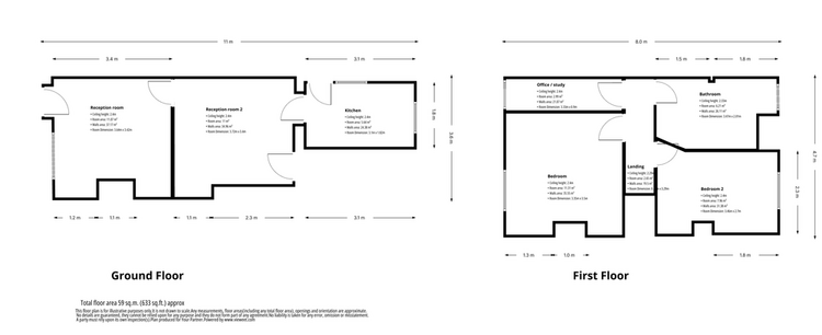
The traditionally built property has the benefit of being uPVC double glazed and in brief comprises of front sitting room, inner lobby, separate dining room with enclosed stairs and kitchen. To the first floor there are two well proportioned bedrooms and a passaged room ideal for storage measuring 11ft 3 x 2ft 9. In our opinion this rooms lends itself for conversion to an en-suite or reconfiguring with the adjoining bedroom to create an additional bedroom subject to the usual building regulations. Furthermore there is a bathroom with three piece suite.
Outside to the front there is gated shared pedestrian access which in turn leads to a rear yard with low maintenance garden.
Excellent freehold residential investment opportunity.
11ft into chimney recess x 11ft 2
11ft 2 into chimney recess x 11ft 2
10ft x 5ft 3
8ft 3 x 3ft 1
11ft 2 into chimney recess x 11ft 2
11ft 5 x 7ft 9 into chimney recess
11ft 3 x 2ft 9
11ft 3 x 6ft 6
Gated shared pedestrian access which in turn leads to a rear yard with low maintenance garden
Solid brick, as built, no insulation (assumed).
Surface Water - Very Low
Standard 15 mbps, Superfast 283 mbps and Ultrafast 1000 mbps show as available in this location
EE, O2, Vodaphone and Three show as available in this location.
Sky, Virgin and BT show as available in this location.
These sales details are awaiting vendor approval.
Freehold. Vacant possession upon completion.
- Heating Supply: Double Glazing, Gas
- Electric Supply: Mains Supply
- Water Supply: Mains Supply
- Sewerage Arrangements: Mains Supply
On Street
Auction Details
The sale of this property will take place on the stated date by way of Auction Event and is being sold under and Unconditional sale type.
Binding contracts of sale will be exchanged at the point of sale.
All sales are subject to SDL Property Auctions Buyers Terms. Properties located in Scotland will be subject to applicable Scottish law.
Auction Deposit and Fees
The following deposits and non- refundable auctioneers fee apply:
• 10% deposit (subject to a minimum of £5,000)
• Buyers Fee of 1.2% of the purchase price (subject to a minimum of £1,500 inc. VAT)
The Buyers Fee does not contribute to the purchase price, however it will be taken into account when calculating the Stamp Duty Land Tax for the property (known as Land and Buildings Transaction Tax for properties located in Scotland), because it forms part of the chargeable consideration for the property.
There may be additional fees listed in the Special Conditions of Sale, which will be available to view within the Legal Pack. You must read the Legal Pack carefully before bidding.
Additional Information
For full details about all auction methods and sale types please refer to the Auction Conduct Guide which can be viewed on the SDL Property Auctions home page.
This guide includes details on the auction registration process, your payment obligations and how to view the Legal Pack (and any applicable Home Report for residential Scottish properties).
Guide Price & Reserve Price
Each property sold is subject to a Reserve Price. The Reserve Price will be within + or - 10% of the Guide Price. The Guide Price is issued solely as a guide so that a buyer can consider whether or not to pursue their interest. A full definition can be found within the Buyers Terms.









