Land
A freehold parcel of land extending to approximately 0.36 acres located along Grove Road benefitting from planning consent for the creation of 5 residential dwellings and associated landscaping and parking. The planning consists of 4 x 3 bed semis and 1 x 4 bed detached
The site is located in Heron Cross, on the outskirts of Fenton and forms an extension of existing housing stock along Grove Road. There is a junior school close to the site and access to the A50 dual carriageway is within half a mile. The site fronts Grove Road close to the Junction with Claud Street.
Interested parties are advised to inspect the legal pack for more information along with inspecting planning documents on the City of Stoke On Trent council planning portal number 70550/ful.
Buyers are referred to the 'Deed of Covenant' & 'TP1 dated 23.11.2021' within the legal documents in relation to Clawback provisions and are advised to make all necessary independent enquiries prior to placing their bid as this will be binding.
We have been advised the overage will be payable by the land owner not the purchaser
The sale price is not subject to VAT.
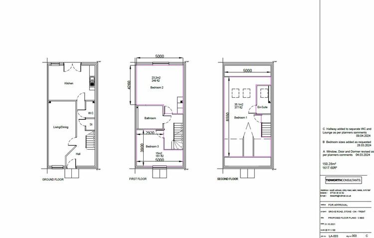
The three bedroom semi detached properties have a gross internal area of 1,617 sqft(150.2 square metres). The four bedroom bedroom detached house have a gross internal area of 1,753 sqft (162.9 square metres).
Freehold. Vacant possession upon completion.
Auction Details
The sale of this property will take place on the stated date by way of Auction Event and is being sold as Unconditional with Variable Fee (England and Wales).
Binding contracts of sale will be exchanged at the point of sale.
All sales are subject to SDL Property Auctions’ Buyers Terms.
Auction Deposit and Fees
The following deposits and non- refundable auctioneer’s fees apply:
• 5% deposit (subject to a minimum of £5,000)
• Buyer’s Fee of 4.8% of the purchase price subject to a minimum of £6,000 inc. VAT.
The Buyer’s Fee does not contribute to the purchase price and will be considered as part of the chargeable consideration for the property in the calculation of stamp duty liability.
There may be additional fees listed in the Special Conditions of Sale, which will be available to view within the Legal Pack. You must read the Legal Pack carefully before bidding.
Additional Information
For full details about all auction methods and sale types please refer to the Auction Conduct Guide which can be viewed on the SDL Property Auctions’ home page.
This guide includes details on the auction registration process, your payment obligations and how to view the Legal Pack.
Guide Price & Reserve Price
Each property sold is subject to a Reserve Price. The Reserve Price will be within + or – 10% of the Guide Price. The Guide Price is issued solely as a guide so that a buyer can consider whether or not to pursue their interest. A full definition can be found within the Buyers Terms.





