Land
A single building plot located to the rear of 153 Leicester Road, Shepshed.
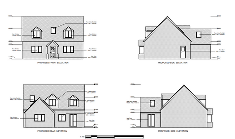
Planning permission has been granted for a large 3 bedroom chalet style house with associated parking and gardens on planning application : P/21/0651/2
The property will offer spacious accommodation over two floors including a superb living kitchen, large lounge, 3 double bedrooms and 2 bathrooms. A shared driveway will lead to parking area and an enclosed rear garden.
An ideal investment opportunity or an ideal self build project.
Well placed on the edge of Shepshed with a great range of local amenities including shops, parks and schooling and great transport links with the motorway network close by.
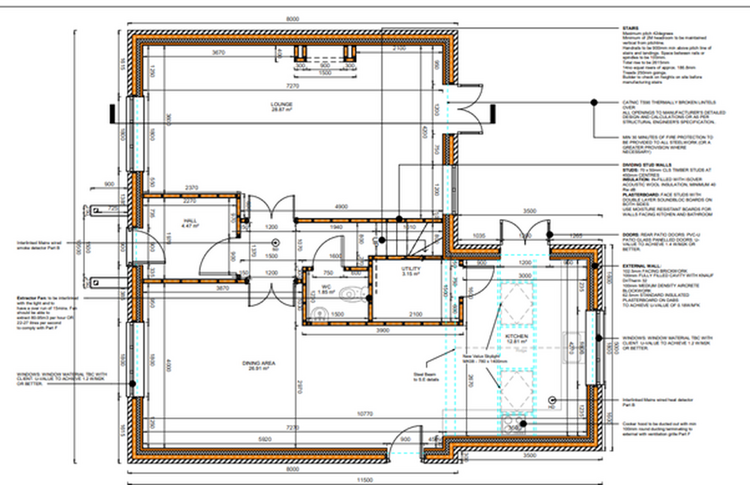
Reception Hallway, Cloaks / w.c, Lounge, Large Living / Dining Kitchen, Utility Room
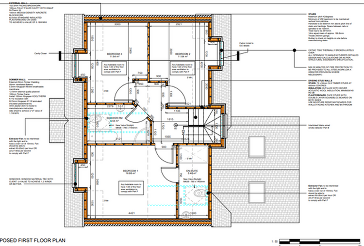
Landing, Bedroom 1, En-Suite, Bedroom 2, Bedroom 3, Bathroom
Shared driveway to parking area to front and enclosed rear garden.
Freehold. Vacant possession upon completion.
Driveway
Auction Details
The sale of this property will take place on the stated date by way of Auction Event and is being sold under an Unconditional sale type.
Binding contracts of sale will be exchanged at the point of sale.
All sales are subject to SDL Property Auctions Buyers Terms. Properties located in Scotland will be subject to applicable Scottish law.
Auction Deposit and Fees
The following deposits and non- refundable auctioneers fees apply:
• 5% deposit (subject to a minimum of £5,000)
• Buyers Fee of 4.8% of the purchase price (subject to a minimum of £6,000 inc. VAT).
The Buyers Fee does not contribute to the purchase price, however it will be taken into account when calculating the Stamp Duty Land Tax for the property (known as Land and Buildings Transaction Tax for properties located in Scotland), because it forms part of the chargeable consideration for the property.
There may be additional fees listed in the Special Conditions of Sale, which will be available to view within the Legal Pack. You must read the Legal Pack carefully before bidding.
Additional Information
For full details about all auction methods and sale types please refer to the Auction Conduct Guide which can be viewed on the SDL Property Auctions home page.
This guide includes details on the auction registration process, your payment obligations and how to view the Legal Pack (and any applicable Home Report for residential Scottish properties).
Guide Price & Reserve Price
Each property sold is subject to a Reserve Price. The Reserve Price will be within + or - 10% of the Guide Price. The Guide Price is issued solely as a guide so that a buyer can consider whether or not to pursue their interest. A full definition can be found within the Buyers Terms.




