Mixed Use
A mixed-use investment opportunity comprising an 11 Bedroom HMO along with 3 retail units to the ground floor offering a low risk high specification investment in the heart of Stoke on Trent within walking distance of the train station and Hospital.
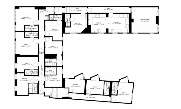
The investment comprises 6 studios with kitchenettes and a further 5 studio rooms. 10 x en-suite and one-off suite. To the ground floor are 3 commercial units.
The property has been recently refurbished to a high standard internally giving the potential for higher yields and less void time. Maintenance will also be minimal owing to the scope of the works undertaken by the current owners.
The property is located on Kingsway in the heart of the town centre with excellent amenities within the immediate vicinity. Stoke on Trent train station is 0.6 miles away and Staffordshire university only 1 mile away from the property.
The property produces a gross income of £84,000 PA and a gross yield at guide of 15%.
Stoke Town Centre
Rivers and Seas Medium. Surface Water Medium.
O2, EE, Three and Vodafone are available.
Standard 16 mbps. Superfast 80 mbps. Ultrafast 1000 mbps.
BT and Sky are available.
Solid brick, as built, no insulation (assumed).
These sales details are awaiting vendor approval.
Freehold. Subject to tenancy.
- Electric Supply: Mains Supply
- Water Supply: Mains Supply
- Sewerage Arrangements: Mains Supply
On Street
Auction Details
The sale of this property will take place on the stated date by way of Auction Event and is being sold under and Unconditional sale type.
Binding contracts of sale will be exchanged at the point of sale.
All sales are subject to SDL Property Auctions Buyers Terms. Properties located in Scotland will be subject to applicable Scottish law.
Auction Deposit and Fees
The following deposits and non- refundable auctioneers fee apply:
• 10% deposit (subject to a minimum of £5,000)
• Buyers Fee of £1,500 inc. VAT
The Buyers Fee does not contribute to the purchase price, however it will be taken into account when calculating the Stamp Duty Land Tax for the property (known as Land and Buildings Transaction Tax for properties located in Scotland), because it forms part of the chargeable consideration for the property.
There may be additional fees listed in the Special Conditions of Sale, which will be available to view within the Legal Pack. You must read the Legal Pack carefully before bidding.
Additional Information
For full details about all auction methods and sale types please refer to the Auction Conduct Guide which can be viewed on the SDL Property Auctions home page.
This guide includes details on the auction registration process, your payment obligations and how to view the Legal Pack (and any applicable Home Report for residential Scottish properties).
Guide Price & Reserve Price
Each property sold is subject to a Reserve Price. The Reserve Price will be within + or - 10% of the Guide Price. The Guide Price is issued solely as a guide so that a buyer can consider whether or not to pursue their interest. A full definition can be found within the Buyers Terms.





















