Semi-detached house
A fantastic just completed HMO ready to be let for £2700 per calendar month, £32,400 per annum representing a excellent yield of 20% against the guide price!
The property has just been completed and is has sign off from all building regs, included in the legal pack! The boiler, electrics and windows have all been upgraded for the best energy performance. The condition throughout is excellent with high spec finishes to ensure the best quality tenants will be attracted.
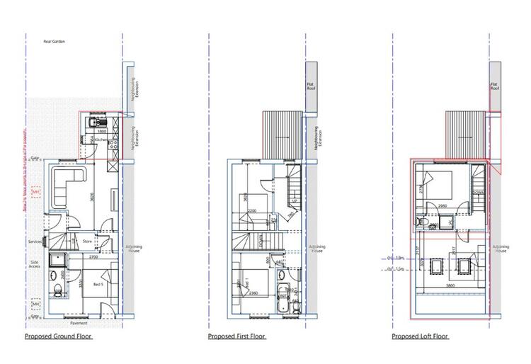
In brief the property comprises of a modern kitchen/lounge/diner, five bedrooms, two with ensuites, modern three piece shared bathroom and enclosed rear garden.
The market town of Eastwood is located 10 miles from Nottingham city centre and has excellent road links to J26 of the M1 motorway. Local amenities include a large supermarket, a range of independent shops, cafes, restaurants and bars, doctors surgery, dentist as well as primary and secondary schools.
Freehold. Vacant possession upon completion.
- Electric Supply: Mains Supply
- Water Supply: Mains Supply
- Sewerage Arrangements: Mains Supply
Auction Details
The sale of this property will take place on the stated date by way of Auction Event and is being sold under an Unconditional sale type.
Binding contracts of sale will be exchanged at the point of sale.
All sales are subject to SDL Property Auctions Buyers Terms. Properties located in Scotland will be subject to applicable Scottish law.
Auction Deposit and Fees
The following deposits and non- refundable auctioneers fees apply:
• 5% deposit (subject to a minimum of £5,000)
• Buyers Fee of 4.8% of the purchase price for properties sold for up to £250,000, or 3.6% of the purchase price for properties sold for over £250,000 (in all cases, subject to a minimum of £6,000 inc. VAT). For worked examples please refer to the Auction Conduct Guide.
The Buyers Fee does not contribute to the purchase price, however it will be taken into account when calculating the Stamp Duty Land Tax for the property (known as Land and Buildings Transaction Tax for properties located in Scotland), because it forms part of the chargeable consideration for the property.
There may be additional fees listed in the Special Conditions of Sale, which will be available to view within the Legal Pack. You must read the Legal Pack carefully before bidding.
Additional Information
For full details about all auction methods and sale types please refer to the Auction Conduct Guide which can be viewed on the SDL Property Auctions home page.
This guide includes details on the auction registration process, your payment obligations and how to view the Legal Pack (and any applicable Home Report for residential Scottish properties).
Guide Price & Reserve Price
Each property sold is subject to a Reserve Price. The Reserve Price will be within + or - 10% of the Guide Price. The Guide Price is issued solely as a guide so that a buyer can consider whether or not to pursue their interest. A full definition can be found within the Buyers Terms.


















