Town house
Available for sale is this Grade II listed property which has six bedrooms and is set over five floors.
This Victorian home boasts traditional features with an impressive entrance hall and basement area, and benefits from overlooking St. James park.
Situated in a highly desirable location the property is near the popular Uplands quarter which offers a selection of bars and restaurants. Also being located near to Cwmdonkin Park, Swansea City Centre, Singleton hospital, and in a good catchment area for both primary and secondary schools, Oakleigh House Private School and Ffynone Private School.
The property is accessed via an iron gate which leads to low maintenance forecourt and entrance door. To the rear of this period property offers an enclosed garden with patio and Iawned areas. There are two outbuildings which provide ample storage.
18ft 10 (into bay) x 13ft 4 (5.76m (into bay) x 4.09m)
18ft 3 (into bay) x 13ft 6 (5.59m (into bay) x 4.12m)
22ft 3 x 9ft 6 (6.80m x 2.91m)
14ft 3 x 13ft 1 (4.35m x 3.99m)
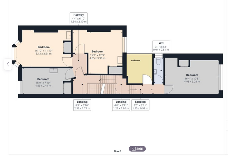
16ft 10 (into bay) x 11ft 10 (5.13m (into bay) x 3.61m)
15ft 3 x 12ft 9 (4.65m x 3.90m)
15ft 0 x 7ft 10 (4.59m x 2.41m)
16ft 4 x 10ft 8 (4.98m x 3.28m)
15ft 4 x 12ft 11 (4.69m x 3.95m)
15ft 1 x 9ft 3 (4.60m x 2.84m)
11ft 3 x 9ft 7 (3.43m x 2.93m)
7ft 8 x 9ft 2 (2.36m x 2.80m)
2ft 9 x 6ft 3 (0.86m x 1.92m)
Construction Material: Standard Brick. Heating: Gas Central Heating. Electrical Supply: Octopus. Water: Welsh Water. Coverage: Broadband - Standard, Ultrafast and Superfast is available in this location. Mobile signal - O2 and Vodafone show as high in this area, and EE and Three as medium. Satellite and Cable - BT, Sky and Virgin show as available.
Prospective buyers are advised to make all necessary independent enquiries prior to placing their bid as this will be binding.
These sales details are awaiting vendor approval.
Freehold. Vacant possession upon completion.
- Heating Supply: Gas
- Electric Supply: Mains Supply
- Water Supply: Mains Supply
- Sewerage Arrangements: Mains Supply
Permit
Auction Details
The sale of this property will take place on the stated date by way of Auction Event and is being sold under an Unconditional sale type.
Binding contracts of sale will be exchanged at the point of sale.
All sales are subject to SDL Property Auctions Buyers Terms. Properties located in Scotland will be subject to applicable Scottish law.
Auction Deposit and Fees
The following deposits and non- refundable auctioneers fees apply:
• 5% deposit (subject to a minimum of £5,000)
• Buyers Fee of 4.8% of the purchase price for properties sold for up to £250,000, or 3.6% of the purchase price for properties sold for over £250,000 (in all cases, subject to a minimum of £6,000 inc. VAT). For worked examples please refer to the Auction Conduct Guide.
The Buyers Fee does not contribute to the purchase price, however it will be taken into account when calculating the Stamp Duty Land Tax for the property (known as Land and Buildings Transaction Tax for properties located in Scotland), because it forms part of the chargeable consideration for the property.
There may be additional fees listed in the Special Conditions of Sale, which will be available to view within the Legal Pack. You must read the Legal Pack carefully before bidding.
Additional Information
For full details about all auction methods and sale types please refer to the Auction Conduct Guide which can be viewed on the SDL Property Auctions home page.
This guide includes details on the auction registration process, your payment obligations and how to view the Legal Pack (and any applicable Home Report for residential Scottish properties).
Guide Price & Reserve Price
Each property sold is subject to a Reserve Price. The Reserve Price will be within + or - 10% of the Guide Price. The Guide Price is issued solely as a guide so that a buyer can consider whether or not to pursue their interest. A full definition can be found within the Buyers Terms.
























