Land
A superb freehold residential development opportunity to acquire broadly rectangular shaped parcel of land, situated along a private road in a non-estate location with planning permission (22/1215/FULL) granted for the erection of a pair two bedroomed semi detached dwellings.
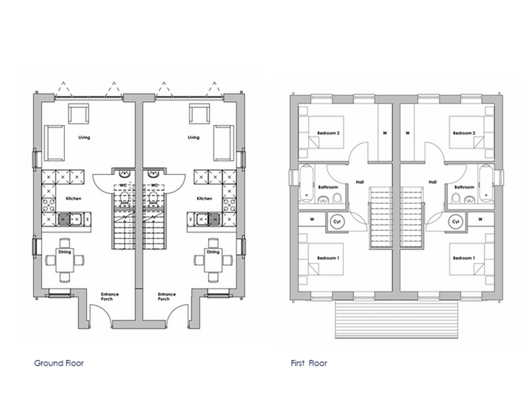
If built in accordance with the approved plans, the architects drawings clearly illustrate a thoughtfully designed ground floor space, incorporating a full depth open plan living dining kitchen with patio doors leading out onto the garden. To the first floor there will be two double bedrooms and bathroom. Outside there will be gardens with associated parking for two vehicles.
We are informed by the vendor that drainage connection has been laid to the site.
The building plot is situated just off the popular Nottingham Road with easy access to Spondon Village Centre, Pride Park, A52 and Derby City Centre.
These sales details are awaiting vendor approval.
Freehold. Vacant possession upon completion.
Auction Details
The sale of this property will take place on the stated date by way of Auction Event and is being sold as Unconditional with Fixed Fee.
Binding contracts of sale will be exchanged at the point of sale.
All sales are subject to SDL Property Auctions Buyers Terms. Properties located in Scotland will be subject to applicable Scottish law.
Auction Deposit and Fees
The following deposits and non- refundable auctioneers fee apply:
• 10% deposit (subject to a minimum of £5,000)
• Buyers Fee of £1,500 inc. VAT
The Buyers Fee does not contribute to the purchase price, however it will be taken into account when calculating the Stamp Duty Land Tax for the property (known as Land and Buildings Transaction Tax for properties located in Scotland), because it forms part of the chargeable consideration for the property.
There may be additional fees listed in the Special Conditions of Sale, which will be available to view within the Legal Pack. You must read the Legal Pack carefully before bidding.
Additional Information
For full details about all auction methods and sale types please refer to the Auction Conduct Guide which can be viewed on the SDL Property Auctions home page.
This guide includes details on the auction registration process, your payment obligations and how to view the Legal Pack (and any applicable Home Report for residential Scottish properties).
Guide Price & Reserve Price
Each property sold is subject to a Reserve Price. The Reserve Price will be within + or - 10% of the Guide Price. The Guide Price is issued solely as a guide so that a buyer can consider whether or not to pursue their interest. A full definition can be found within the Buyers Terms.



