Semi-detached house
An opportunity to renovate a 4 bedroom property in an extremely sought after location facing Little Aston Golf Course and backing onto woodlands.
This spacious 4 bedroom property offers the potential to add significant value once renovated. This traditional semi has been cleared, re-configured and had most of the 1st fix completed. For an investor, builder or owner occupier there is huge potential in the property as its location is very sought after and offers a blank canvas.
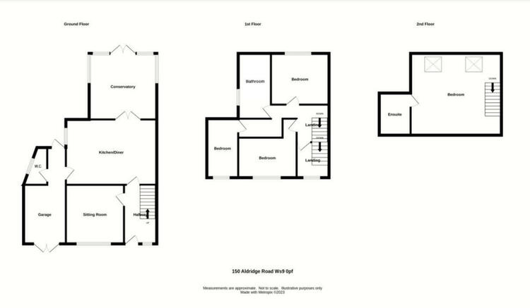
The property comprises of an entrance hall, lounge, open plan kitchen/living/dining room with conservatory, as well as a downstairs WC and access to the garage. The first and second floors have 4 bedrooms, master with en-suite and family bathroom. The plot is a good size and has ample off road parking and a private rear garden overlooking woodlands.
Please click on the virtual tour to watch our walk through video with commentary.
Viewings are also available and come highly recommended in order to fully appreciate the opportunity.
Construction Material: Standard brick. Services: All mains services connected. Heating: TBC. Coverage: Broadband - Standard, Ultrafast and Superfast is available in this location. Mobile signal - O2 and vodafone show as available in this area. Satellite and Cable - BT and Sky show as available in this area.
Prospective buyers are advised to make all necessary independent enquiries prior to placing their bid as this will be binding.
PLEASE NOTE: Under the Estate Agents Act 1979 we are required to declare any conflict of interest. The seller of this property is also our joint agent in the sale, and will receive part of any Buyers Fee as commission. If you have any queries regarding this, please contact us for further information.
These sales details are awaiting vendor approval.
Freehold. Vacant possession upon completion.
Auction Details
The sale of this property will take place on the stated date by way of Auction Event and is being sold as Unconditional with Variable Fee (England and Wales).
Binding contracts of sale will be exchanged at the point of sale.
All sales are subject to SDL Property Auctions Buyers Terms. Properties located in Scotland will be subject to applicable Scottish law.
Auction Deposit and Fees
The following deposits and non- refundable auctioneers fees apply:
• 5% deposit (subject to a minimum of £5,000)
• Buyers Fee of 4.8% of the purchase price for properties sold for up to £250,000, or 3.6% of the purchase price for properties sold for over £250,000 (in all cases, subject to a minimum of £6,000 inc. VAT). For worked examples please refer to the Auction Conduct Guide.
The Buyers Fee does not contribute to the purchase price, however it will be taken into account when calculating the Stamp Duty Land Tax for the property (known as Land and Buildings Transaction Tax for properties located in Scotland), because it forms part of the chargeable consideration for the property.
There may be additional fees listed in the Special Conditions of Sale, which will be available to view within the Legal Pack. You must read the Legal Pack carefully before bidding.
Additional Information
For full details about all auction methods and sale types please refer to the Auction Conduct Guide which can be viewed on the SDL Property Auctions home page.
This guide includes details on the auction registration process, your payment obligations and how to view the Legal Pack (and any applicable Home Report for residential Scottish properties).
Guide Price & Reserve Price
Each property sold is subject to a Reserve Price. The Reserve Price will be within + or - 10% of the Guide Price. The Guide Price is issued solely as a guide so that a buyer can consider whether or not to pursue their interest. A full definition can be found within the Buyers Terms.



















