Land
A freehold development site extending a 1/4 acres (or thereabouts) with full planning consent for 2 detached bungalows along with a detached house.
We estimate GDV to be in the region of £1,000,000 (depending on specification).
The site fronts Station New Road, with an existing building to be demolished. The site is situated close to a range of good local amenities in Old Tupton and is conveniently positioned for transport links into Clay Cross and Chesterfield.
Planning has been granted by North East Derbyshire District Council for the demolition of existing bungalow and garage and erection of 1 no 2-storey dwelling with detached garage and 2 no. bungalows, planning reference 23/00698/FL dated 3rd November 2023. A copy of the approval notice and plans can be obtained on the NEDDC website.
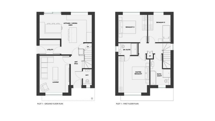
Proposed Scheme And Gdv - Full planning consent has been obtained for the following:
Detached house (1184 sq.ft. gross internal) with detached single garage
Detached Bungalow (893 sq.ft gross internal) with parking
Detached Bungalow (925 sq.ft gross internal) with parking
Community Infrastructure Levy -
We are advised This development would not be subject to a CIL as NEDDC have not adopted this policy.
Ground Conditions - An intrusive site investigation has been carried out by Geo Investigate with shallow and deep drilling as well as ongoing gas monitoring.
It is understood that no abnormal ground conditions have been found. We advise interested parties to inspect the legal pack for more information.
Service Connections -Services are believed to be available to the existing building and interested parties are advised to inspect the legal pack and make their own enquiries.
Freehold. Vacant possession upon completion.
Auction Details
The sale of this property will take place on the stated date by way of Auction Event and is being sold as Unconditional with Fixed Fee.
Binding contracts of sale will be exchanged at the point of sale.
All sales are subject to SDL Property Auctions Buyers Terms. Properties located in Scotland will be subject to applicable Scottish law.
Auction Deposit and Fees
The following deposits and non- refundable auctioneers fee apply:
• 10% deposit (subject to a minimum of £5,000)
• Buyers Fee of £1,500 inc. VAT
The Buyers Fee does not contribute to the purchase price, however it will be taken into account when calculating the Stamp Duty Land Tax for the property (known as Land and Buildings Transaction Tax for properties located in Scotland), because it forms part of the chargeable consideration for the property.
There may be additional fees listed in the Special Conditions of Sale, which will be available to view within the Legal Pack. You must read the Legal Pack carefully before bidding.
Additional Information
For full details about all auction methods and sale types please refer to the Auction Conduct Guide which can be viewed on the SDL Property Auctions home page.
This guide includes details on the auction registration process, your payment obligations and how to view the Legal Pack (and any applicable Home Report for residential Scottish properties).
Guide Price & Reserve Price
Each property sold is subject to a Reserve Price. The Reserve Price will be within + or - 10% of the Guide Price. The Guide Price is issued solely as a guide so that a buyer can consider whether or not to pursue their interest. A full definition can be found within the Buyers Terms.










