Terraced House
A bay fronted terraced house situated in a popular and convenient location. The property has been in the hands of the same family since it was built.
Benefitting from gas central heating and UPVC double glazing but now requiring modernisation.
Well placed in a quiet location but within an easy walk of Wigston town centre and its array of amenities. Good public transport and road links.
An ideal potential investment which will make an excellent family home or sound potential buy to let investment. Prospective buyers are advised to make all necessary independent enquiries prior to placing their bid as this will be binding.
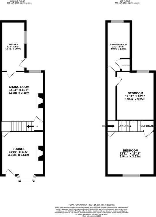
With bay window to the front elevation, cupboard housing the meters, coving to the ceiling, fireplace and radiator.
With under stairs storage cupboard, stairs off to the first floor, fireplace, window to the rear elevation and radiator.
Comprising base and wall mounted units with work surfaces, sink unit with drainer, tiled splash backs, wall mounted boiler, plumbing for washing machine, window to the side elevation and door to the rear garden.
With radiator and access to the loft.
With over stairs storage cupboard, window to the front elevation and radiator.
With window to the rear elevation and radiator.
Comprising shower cubicle, wash hand basin, low flush WC, airing cupboard, tiled splash backs, radiator and window to the rear elevation.
The property has a small enclosed forecourt to the front with a shared middle entry that leads to the rear garden. The rear garden has outhouses, outside WC, plants and shrubs, fenced surround and gated side access.
Solid brick, as built, no insulation (assumed)
Gas central heating and double glazing
Mains
Mains
Mains
Standard - 15 mbps, Superfast - 80 mbps and Ultrafast - 1000 mbps available
O2, EE, Three and Vodafone available
The property is within a controlled parking zone or within a local authority parking scheme.<br><br>Prospective buyers are advised to make all necessary independent enquiries prior to placing their bid as this will be binding.
These sales details are awaiting vendor approval.
Freehold. Vacant possession upon completion.
- Heating Supply: Double Glazing, Gas Central
- Electric Supply: Mains Supply
- Water Supply: Mains Supply
- Sewerage Arrangements: Mains Supply
Auction Details
The sale of this property will take place on the stated date by way of Auction Event and is being sold as Unconditional with Variable Fee (England and Wales).
Binding contracts of sale will be exchanged at the point of sale.
All sales are subject to SDL Property Auctions Buyers Terms. Properties located in Scotland will be subject to applicable Scottish law.
Auction Deposit and Fees
The following deposits and non- refundable auctioneers fees apply:
• 5% deposit (subject to a minimum of £5,000)
• Buyers Fee of 4.8% of the purchase price for properties sold for up to £250,000, or 3.6% of the purchase price for properties sold for over £250,000 (in all cases, subject to a minimum of £6,000 inc. VAT). For worked examples please refer to the Auction Conduct Guide.
The Buyers Fee does not contribute to the purchase price, however it will be taken into account when calculating the Stamp Duty Land Tax for the property (known as Land and Buildings Transaction Tax for properties located in Scotland), because it forms part of the chargeable consideration for the property.
There may be additional fees listed in the Special Conditions of Sale, which will be available to view within the Legal Pack. You must read the Legal Pack carefully before bidding.
Additional Information
For full details about all auction methods and sale types please refer to the Auction Conduct Guide which can be viewed on the SDL Property Auctions home page.
This guide includes details on the auction registration process, your payment obligations and how to view the Legal Pack (and any applicable Home Report for residential Scottish properties).
Guide Price & Reserve Price
Each property sold is subject to a Reserve Price. The Reserve Price will be within + or - 10% of the Guide Price. The Guide Price is issued solely as a guide so that a buyer can consider whether or not to pursue their interest. A full definition can be found within the Buyers Terms.












