Commercial Property
A freehold mid-terrace two storey property, with front and rear access offered with vacant possession upon completion.
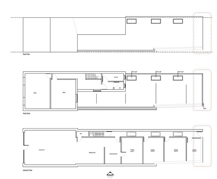
The rear of the property has recently been developed to provide additional consultation rooms and was previously used as an Opticians practice.
The ground floor has 4 consulting rooms that all benefit from air conditioning and central heating, separate staff and customer WC facilities.
Accommodation:
Ground Floor 1,439 Sq. Ft. (134 Sq. M.)
First Floor 531 Sq. Ft. (49 Sq. M.)
Total Sq. Ft.: 1,970 Sq. Ft. (183 Sq. M.)
The property is located in a prime position on the main Lozells Road (B4144) close to the junction of Finch Road, in the suburb of Lozells, Birmingham. Birmingham City Centre is approximately 3 miles distant from the subject property and accessible via the A34 dual carriageway. Finch Road Primary NHS Care Centre is located opposite the subject property. The property is surrounded by other independent retailers, food operators and residential housing.
These sales details are awaiting vendor approval.
Freehold. Vacant possession upon completion.
Auction Details
The sale of this property will take place on the stated date by way of Auction Event and is being sold as Unconditional with Fixed Fee.
Binding contracts of sale will be exchanged at the point of sale.
All sales are subject to SDL Property Auctions Buyers Terms. Properties located in Scotland will be subject to applicable Scottish law.
Auction Deposit and Fees
The following deposits and non- refundable auctioneers fee apply:
• 10% deposit (subject to a minimum of £5,000)
• Buyers Fee of £1,500 inc. VAT
The Buyers Fee does not contribute to the purchase price, however it will be taken into account when calculating the Stamp Duty Land Tax for the property (known as Land and Buildings Transaction Tax for properties located in Scotland), because it forms part of the chargeable consideration for the property.
There may be additional fees listed in the Special Conditions of Sale, which will be available to view within the Legal Pack. You must read the Legal Pack carefully before bidding.
Additional Information
For full details about all auction methods and sale types please refer to the Auction Conduct Guide which can be viewed on the SDL Property Auctions home page.
This guide includes details on the auction registration process, your payment obligations and how to view the Legal Pack (and any applicable Home Report for residential Scottish properties).
Guide Price & Reserve Price
Each property sold is subject to a Reserve Price. The Reserve Price will be within + or - 10% of the Guide Price. The Guide Price is issued solely as a guide so that a buyer can consider whether or not to pursue their interest. A full definition can be found within the Buyers Terms.














