Mixed Use
Exquisite Grade I mixed-use entertainment venue.
This magnificent neo-classical former Courthouse building boasts a symmetrical frontage of seven bays and tetrastyle portico with Doric columns. It is Grade I listed and has been extensively repaired in recent years. The subsequent conversion created a live entertainment theatre from the original Crown courtroom, a large and elegant restaurant from the original Magistrates courtroom at lower ground floor.
The property boasts facilities that make it suitable for a variety of different uses, such as theatre productions, conferences, other events and including more intimate private occasions, weddings and other functions. The property also has facilities for a more regular, day to day clientele, including The Bench Bistro which provides potential for casual dining. An experienced purchaser may also feel that the property could be suitable for a variety of potential trading operations and styles, subject to the necessary planning conditions and consents.
Accommodation:
Ground Floor:
To the left hand side of the property, there is The Bench Restaurant. This is a light and airy room with a double height ceiling which is decorated with intricate plaster coving. The room is furnished with timber tables and chairs, providing c.60 covers. There is a bar servery to the back wall, providing another potential revenue opportunity. To the right hand side of the property is the most striking element of the whole building - a 250 capacity Theatre. This room benefits from a mezzanine gallery which can accommodate 50 out of the overall capacity for this room. Also to the ground floor is a catering kitchen which is well equipped with a range of stainless steel catering equipment. Ladies and Gents customer toilets.
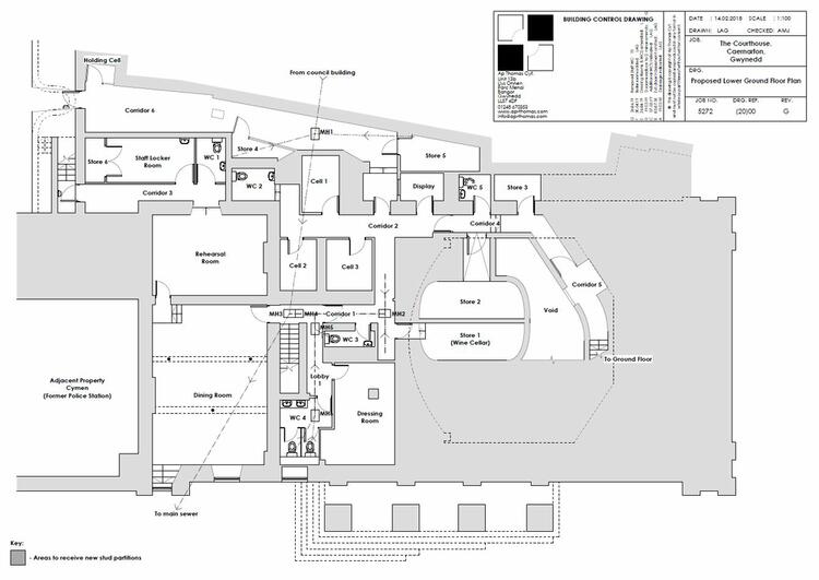
Basement:
In addition to a number of storage and dressing rooms, the basement also holds the Witness Room Bar Lounge and Green Room, which can accommodate a further 60 guests.
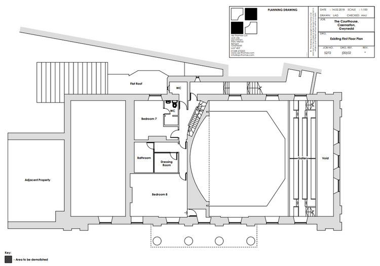
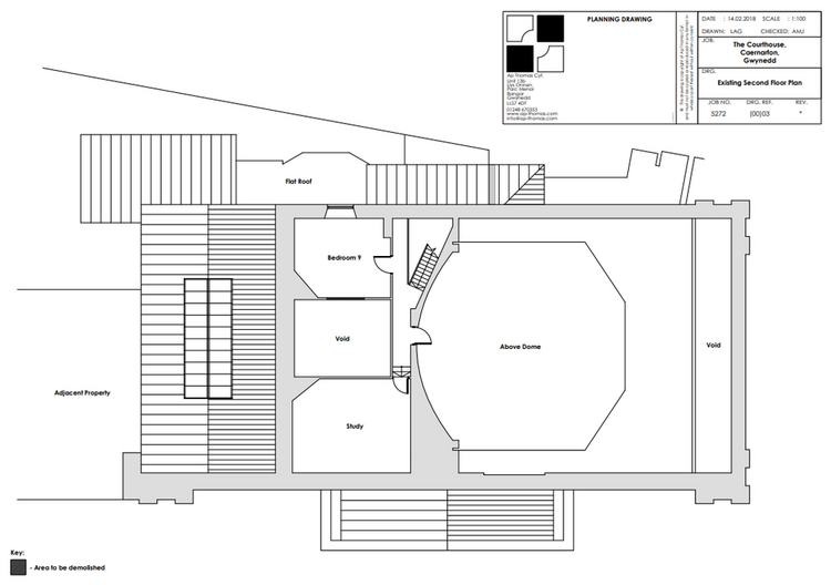
First and Second Floors:
A number of rooms are available for conversion into private living accommodation and/or there is also the potential for these rooms to be converted into letting bedrooms.
Floor Area:
Ground Floor and basement approximately 5,012 Sq. ft., comprising;
1,869 sq ft - Theatre
820 sq ft - The Bench Restaurant
703 sq ft - Lobby, kitchen and offices
820 sq ft - Witness Room Bar Lounge and Green Room
800 sq ft - Storage and offices
In addition, the private accommodation on the first and second floors provides a further 1,502 sq ft. These floor areas have been scaled from plans and are only to be used as an indicative guide to the size of the unit.
Location:
The building is situated within the old town walls, directly facing Caernarfon Castle and 200 m from the main visitors entrance. The centre of this historic town is just a few short steps away, as is the harbour and Menai Straight looking out toward the isle of Anglesey.
These sales details are awaiting vendor approval.
Freehold. Vacant possession upon completion.
Auction Details
The sale of this property will take place on the stated date by way of Auction Event and is being sold as Unconditional with Variable Fee (England and Wales).
Binding contracts of sale will be exchanged at the point of sale.
All sales are subject to SDL Property Auctions Buyers Terms. Properties located in Scotland will be subject to applicable Scottish law.
Auction Deposit and Fees
The following deposits and non- refundable auctioneers fees apply:
• 5% deposit (subject to a minimum of £5,000)
• Buyers Fee of 4.8% of the purchase price, subject to a minimum of £6,000 inc. VAT. For worked examples please refer to the Auction Conduct Guide.
The Buyers Fee does not contribute to the purchase price, however it will be taken into account when calculating the Stamp Duty Land Tax for the property (known as Land and Buildings Transaction Tax for properties located in Scotland), because it forms part of the chargeable consideration for the property.
There may be additional fees listed in the Special Conditions of Sale, which will be available to view within the Legal Pack. You must read the Legal Pack carefully before bidding.
Additional Information
For full details about all auction methods and sale types please refer to the Auction Conduct Guide which can be viewed on the SDL Property Auctions home page.
This guide includes details on the auction registration process, your payment obligations and how to view the Legal Pack (and any applicable Home Report for residential Scottish properties).
Guide Price & Reserve Price
Each property sold is subject to a Reserve Price. The Reserve Price will be within + or - 10% of the Guide Price. The Guide Price is issued solely as a guide so that a buyer can consider whether or not to pursue their interest. A full definition can be found within the Buyers Terms.










