Serviced Office
A substantial, detached, modern landmark office building benefitting from on-site car park providing 46 spaces.
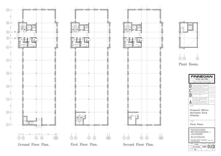
The property is arranged to provide good quality open plan office accommodation over three floors and comprises a central core of lobby, stairs, lift, male, female and disabled WCs and cleaner's cupboards on each floor.
Total current passing rent of £72,500 per annum which represents a yield of 14.5% against the guide price.
It is anticipated that by 16 September, the rents will be reviewed to in excess of £96,037.02 for the two floors subject to leases, given anticipated further rises in the RPI All Items Index over the next two months. This would realise a yield of 19.21% and once second floor was let a yield of 27.01% and income of £135,037 per annum.
Grimsby is a large coastal town and seaport in North East, Lincolnshire, of which it is the administrative centre, located approximately 29 miles north east of Lincoln. Grimsby lies 15 miles from the nearest motorway, the M180, which continues as the A180 into the town and acts as a link to the national motorway network. The town is skirted by the A18, with the A46 passing through the town providing a connection towards Lincoln and the A16 which links the town to Louth and southern and eastern Lincolnshire.
The ground floor is let to FOCUS Independent Adult Social Work CIC on an effective FRI lease for a term of 15 years from 16 September 2019 at a passing rent of £36,250 per annum. The lease provides for the annual rent to be reviewed by reference to RPI on 16 September 2024 and every fiŌh anniversary of that date. There is a mutual rolling option to break subject to either party serving the other 12 months’ prior written notice, such break date to be no earlier than 16 September 2025. Provisions of section 24 to 28 of the LTA 1954 are excluded.
The first floor is also let to FOCUS Independent Adult Social Work CIC on an effective FRI lease for a term of years expiring 15 September 2034 at a passing rent of £36,250 per annum. The lease provides for the annual rent to be reviewed by reference to RPI on 16 September 2024 and every fifth anniversary of that date. There is a mutual rolling option to break subject to either party serving the other 12 months’ prior written notice. Provisions of section 24 to 28 of the LTA 1954 are excluded.
The second floor is currently vacant and on the market to let with a guide rent of £39,000 per annum exclusive.
Unimplemented prior approval for change of use of the building to provide 20 residential flats was granted by North East Lincolnshire Council in 2014 (application no: DM/0744/14/PAC).
These sales details are awaiting vendor approval.
Any ground rent and service charge review periods will be confirmed in the lease documents within the legal pack.
Leasehold. Subject to tenancy.
£1
94
Auction Details
The sale of this property will take place on the stated date by way of Auction Event and is being sold as Unconditional with Fixed Fee.
Binding contracts of sale will be exchanged at the point of sale.
All sales are subject to SDL Property Auctions Buyers Terms. Properties located in Scotland will be subject to applicable Scottish law.
Auction Deposit and Fees
The following deposits and non- refundable auctioneers fee apply:
• 10% deposit (subject to a minimum of £5,000)
• Buyers Fee of £1,500 inc. VAT
The Buyers Fee does not contribute to the purchase price, however it will be taken into account when calculating the Stamp Duty Land Tax for the property (known as Land and Buildings Transaction Tax for properties located in Scotland), because it forms part of the chargeable consideration for the property.
There may be additional fees listed in the Special Conditions of Sale, which will be available to view within the Legal Pack. You must read the Legal Pack carefully before bidding.
Additional Information
For full details about all auction methods and sale types please refer to the Auction Conduct Guide which can be viewed on the SDL Property Auctions home page.
This guide includes details on the auction registration process, your payment obligations and how to view the Legal Pack (and any applicable Home Report for residential Scottish properties).
Guide Price & Reserve Price
Each property sold is subject to a Reserve Price. The Reserve Price will be within + or - 10% of the Guide Price. The Guide Price is issued solely as a guide so that a buyer can consider whether or not to pursue their interest. A full definition can be found within the Buyers Terms.




