Land
Enjoying views over the surrounding countryside this plot with lapsed planning offers a rare opportunity.
Planning permission (App No: 18/00595/FUL) was granted by Calderdale Council on 17th July 2018 (now lapsed) for the construction of a four bedroomed detached house. Prospective buyers must make all necessary independent enquiries of the council in this respect for their specific, intended use prior to placing their bid, as this will be binding.
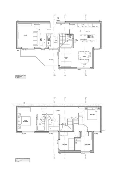
If constructed in accordance with the approved plans, the accommodation would comprise of hallway with cloakroom off, utility room, lounge, open plan kitchen/sitting/dining area, four bedrooms (one being en-suite) and family bathroom. A balcony accessed from the lounge/sitting area would provide views of the surrounding countryside. The property would benefit from gardens surrounding the property and off road parking to the side.
Please be advised that the auctioneers have not personally inspected the property. Prospective buyers are advised to view the land and any other necessary independent enquiries before placing their bid, as this will be binding.
Direct on site.
Freehold. Vacant possession upon completion.
Auction Details
The sale of this property will take place on the stated date by way of Auction Event and is being sold as Unconditional with Fixed Fee.
Binding contracts of sale will be exchanged at the point of sale.
All sales are subject to SDL Property Auctions Buyers Terms. Properties located in Scotland will be subject to applicable Scottish law.
Auction Deposit and Fees
The following deposits and non- refundable auctioneers fee apply:
• 10% deposit (subject to a minimum of £5,000)
• Buyers Fee of £1,500 inc. VAT
The Buyers Fee does not contribute to the purchase price, however it will be taken into account when calculating the Stamp Duty Land Tax for the property (known as Land and Buildings Transaction Tax for properties located in Scotland), because it forms part of the chargeable consideration for the property.
There may be additional fees listed in the Special Conditions of Sale, which will be available to view within the Legal Pack. You must read the Legal Pack carefully before bidding.
Additional Information
For full details about all auction methods and sale types please refer to the Auction Conduct Guide which can be viewed on the SDL Property Auctions home page.
This guide includes details on the auction registration process, your payment obligations and how to view the Legal Pack (and any applicable Home Report for residential Scottish properties).
Guide Price & Reserve Price
Each property sold is subject to a Reserve Price. The Reserve Price will be within + or - 10% of the Guide Price. The Guide Price is issued solely as a guide so that a buyer can consider whether or not to pursue their interest. A full definition can be found within the Buyers Terms.


