Land
**LAST PLOT AVAILABLE ** Superb building plot.
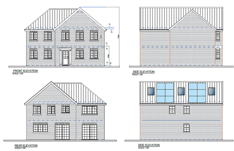
An extremely rare opportunity to acquire a building plot in a highly sought after location with outline planning consent for a large four bed executive detached house.
Located in Stoneygate which lies approximately two and a half miles south of Leicester city centre, providing convenient access into the city with its professional quarters and mainline railway station providing access to London St Pancras in little over an hour.
Fashionable shopping can be found at the nearby Allandale Road/Francis Street parades with a range of boutiques, stores and restaurants. Popular private and state schooling can be found nearby making this an ideal location to build a brand new family house.
The plot is approximately 290 sqm and is situated behind 23 St Johns Road with direct access off Laureston Drive.
If built to the specification of the plans supplied within the planning permission, the property would comprise:
Reception Hallway, Cloakroom/WC, Lounge, Sitting Room, Dining Kitchen and Utility Room.
Landing, Bedroom One (with en suite), Bedroom Two (with en suite), Bedroom Three, Bedroom Four and Family Bathroom.
Landing, Study and Play Room.
Ample parking and large private gardens.
The land is registered as Land on the east side of 23 St Johns Road, Leicester (LE2 2BL) and is alongside land that was previously sold in our May Auction. Prospective buyers are advised to make all necessary independent enquiries prior to placing their bid as this will be binding.
Freehold. Vacant possession upon completion.
Auction Details
The sale of this property will take place on the stated date by way of Auction Event and is being sold as Unconditional with Fixed Fee.
Binding contracts of sale will be exchanged at the point of sale.
All sales are subject to SDL Property Auctions Buyers Terms. Properties located in Scotland will be subject to applicable Scottish law.
Auction Deposit and Fees
The following deposits and non- refundable auctioneers fee apply:
• 10% deposit (subject to a minimum of £5,000)
• Buyers Fee of £1,500 inc. VAT
The Buyers Fee does not contribute to the purchase price, however it will be taken into account when calculating the Stamp Duty Land Tax for the property (known as Land and Buildings Transaction Tax for properties located in Scotland), because it forms part of the chargeable consideration for the property.
There may be additional fees listed in the Special Conditions of Sale, which will be available to view within the Legal Pack. You must read the Legal Pack carefully before bidding.
Additional Information
For full details about all auction methods and sale types please refer to the Auction Conduct Guide which can be viewed on the SDL Property Auctions home page.
This guide includes details on the auction registration process, your payment obligations and how to view the Legal Pack (and any applicable Home Report for residential Scottish properties).
Guide Price & Reserve Price
Each property sold is subject to a Reserve Price. The Reserve Price will be within + or - 10% of the Guide Price. The Guide Price is issued solely as a guide so that a buyer can consider whether or not to pursue their interest. A full definition can be found within the Buyers Terms.







