Residential Development
The first and second floors of a mid-terraced three storey building located in Bromyard along the main High Street.
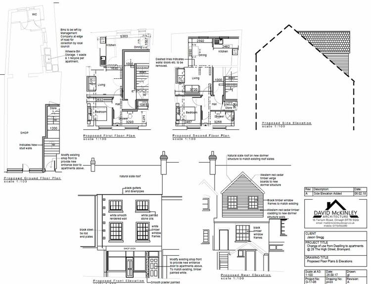
The space was used as storage and had planning granted in 2018 for the creation of two x 1 bedroom apartments.
We have been advised that the works to install the stairs from ground to first floor and the new self-contained access onto High Street was completed in 2019 - hence the planning approval is still valid as works have been started. When installing the stairs the vendors fireproofed the ceiling in the restaurant in readiness for the residential conversion upstairs.
Upon inspection we noted works have commenced with new UPVC windows present and partition walls erected.
We have also been advised that the following works have been carried out:
- Front roof elevation has been stripped and re-slated with new slate, and new lead work.
- Front elevation has been hacked off, re-rendered, and painted
- New gutters and down pipes fitted.
Interested parties are advised to inspect the legal pack and the Herefordshire Council planning Portal for more information (DCN033636/F).
These sales details are awaiting vendor approval.
A 999 year lease will be created on completion. Any ground rent and service charge review periods will be confirmed in the lease documents within the legal pack.
Leasehold. Vacant possession upon completion.
Auction Details
The sale of this property will take place on the stated date by way of Auction Event and is being sold as Unconditional with Fixed Fee.
Binding contracts of sale will be exchanged at the point of sale.
All sales are subject to SDL Property Auctions Buyers Terms. Properties located in Scotland will be subject to applicable Scottish law.
Auction Deposit and Fees
The following deposits and non- refundable auctioneers fee apply:
• 10% deposit (subject to a minimum of £5,000)
• Buyers Fee of £1,500 inc. VAT
The Buyers Fee does not contribute to the purchase price, however it will be taken into account when calculating the Stamp Duty Land Tax for the property (known as Land and Buildings Transaction Tax for properties located in Scotland), because it forms part of the chargeable consideration for the property.
There may be additional fees listed in the Special Conditions of Sale, which will be available to view within the Legal Pack. You must read the Legal Pack carefully before bidding.
Additional Information
For full details about all auction methods and sale types please refer to the Auction Conduct Guide which can be viewed on the SDL Property Auctions home page.
This guide includes details on the auction registration process, your payment obligations and how to view the Legal Pack (and any applicable Home Report for residential Scottish properties).
Guide Price & Reserve Price
Each property sold is subject to a Reserve Price. The Reserve Price will be within + or - 10% of the Guide Price. The Guide Price is issued solely as a guide so that a buyer can consider whether or not to pursue their interest. A full definition can be found within the Buyers Terms.











