Residential Development
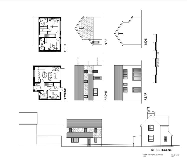
A three bedroom semi-detached house with planning for a three bedroom detached house with parking/driveway to the rear.
The original house comprises of a three bedroom semi detached with parking to the front and enclosed rear garden. It offers good size rooms throughout along with having gas central heating and UPVC double glazing but would now benefit from modernisation.
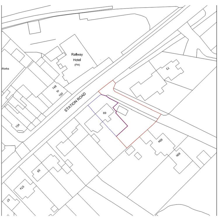
Planning permission was granted in May 2022 for the erection of a three bedroom detached property to the rear with associated gardens and parking. Planning Ref 21/1438/FUL.
An ideal development opportunity in a highly popular location.
Well placed for a great range of local amenities including Glenfield Hospital, good transport links and motorway access.
Hall, Cloakroom/WC, Breakfast Kitchen, Lounge, Conservatory, Landing, Bedroom One, Bedroom Two, Bedroom Three, Large bathroom. Parking to front and enclosed rear garden.
Hallway, Open Plan Lounge/Kitchen/Diner, Three Bedrooms, Two En-suites and Main Bathroom. Enclosed garden and driveway parking.
Standard brick.
Gas Central Heating and Double Glazing.
Mains.
Private Supply.
Mains.
O2, EE, Three, Vodafone available.
Standard - 11 mbps, Superfast - 80 mbps, Ultrafast - 1000 mbps available.
These sales details are awaiting vendor approval.
Freehold. Vacant possession upon completion.
- Heating Supply: Gas Central, Double Glazing
- Electric Supply: Mains Supply
- Water Supply: Private Supply
- Sewerage Arrangements: Mains Supply
Driveway
Auction Details
The sale of this property will take place on the stated date by way of Auction Event and is being sold as Unconditional with Fixed Fee.
Binding contracts of sale will be exchanged at the point of sale.
All sales are subject to SDL Property Auctions Buyers Terms. Properties located in Scotland will be subject to applicable Scottish law.
Auction Deposit and Fees
The following deposits and non- refundable auctioneers fee apply:
• 10% deposit (subject to a minimum of £5,000)
• Buyers Fee of £1,500 inc. VAT
The Buyers Fee does not contribute to the purchase price, however it will be taken into account when calculating the Stamp Duty Land Tax for the property (known as Land and Buildings Transaction Tax for properties located in Scotland), because it forms part of the chargeable consideration for the property.
There may be additional fees listed in the Special Conditions of Sale, which will be available to view within the Legal Pack. You must read the Legal Pack carefully before bidding.
Additional Information
For full details about all auction methods and sale types please refer to the Auction Conduct Guide which can be viewed on the SDL Property Auctions home page.
This guide includes details on the auction registration process, your payment obligations and how to view the Legal Pack (and any applicable Home Report for residential Scottish properties).
Guide Price & Reserve Price
Each property sold is subject to a Reserve Price. The Reserve Price will be within + or - 10% of the Guide Price. The Guide Price is issued solely as a guide so that a buyer can consider whether or not to pursue their interest. A full definition can be found within the Buyers Terms.




















