Apartment
A very tidy one bedroom first floor apartment situated excellently for city centre access. The property also includes a secure underground parking space.
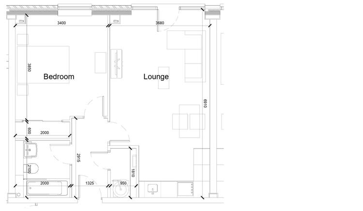
In brief the accommodation comprises of Entrance Hall, Open plan living kitchen / diner and one double bedroom.
Walking distance to the fantastic amenities Birmingham City Centre has to offer!
Additional Information
Parking Arrangements: Allocated parking
Water: Mains
Electric: Mains
Sewerage: Mains
Heating: Electric room heaters
Building construction: TBC
Flood Risk: Surface water high (full building)
Broadband: Standard, Superfast and Ultrafast
Mobile Signal: O2, EE, Three and Vodafone
Satellite and Cable TV Availability: BT and Sky
Any ground rent and service charge review periods will be confirmed in the lease documents within the legal pack.
These sales details are awaiting vendor approval.
Please be advised that the auctioneers have not personally inspected the property. Prospective buyers are advised to make a viewing enquiry and any other necessary independent enquiries before placing their bid, as this will be binding.
Leasehold. Subject to tenancy.
Auction Details
The sale of this property will take place on the stated date by way of Auction Event and is being sold as Unconditional with Variable Fee (England and Wales).
Binding contracts of sale will be exchanged at the point of sale.
All sales are subject to SDL Property Auctions Buyers Terms. Properties located in Scotland will be subject to applicable Scottish law.
Auction Deposit and Fees
The following deposits and non- refundable auctioneers fees apply:
• 5% deposit (subject to a minimum of £5,000)
• Buyers Fee of 4.8% of the purchase price for properties sold for up to £250,000, or 3.6% of the purchase price for properties sold for over £250,000 (in all cases, subject to a minimum of £6,000 inc. VAT). For worked examples please refer to the Auction Conduct Guide.
The Buyers Fee does not contribute to the purchase price, however it will be taken into account when calculating the Stamp Duty Land Tax for the property (known as Land and Buildings Transaction Tax for properties located in Scotland), because it forms part of the chargeable consideration for the property.
There may be additional fees listed in the Special Conditions of Sale, which will be available to view within the Legal Pack. You must read the Legal Pack carefully before bidding.
Additional Information
For full details about all auction methods and sale types please refer to the Auction Conduct Guide which can be viewed on the SDL Property Auctions home page.
This guide includes details on the auction registration process, your payment obligations and how to view the Legal Pack (and any applicable Home Report for residential Scottish properties).
Guide Price & Reserve Price
Each property sold is subject to a Reserve Price. The Reserve Price will be within + or - 10% of the Guide Price. The Guide Price is issued solely as a guide so that a buyer can consider whether or not to pursue their interest. A full definition can be found within the Buyers Terms.






