Terraced House
A large, three bedroom terraced house. We have been advised there is planning permission in place for conversion to a five bedroom, all en suite, HMO. Prospective buyers are advised to make all necessary independent enquiries prior to placing their bid as this will be binding.
The property is in the desirable location of Kingsthorpe with an abundance of local amenities close by as well as public transport links.
Outside, there is an enclosed rear garden which will house both bike and bin stores.
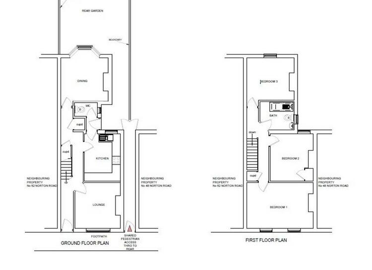
Once converted, the property will comprise of a reception hallway, cloakroom, communal kitchen, five bedrooms all with en suite shower rooms.
Potential annual gross income of £36,000 once fully let, based on comparable evidence . Prospective buyers are advised to make all necessary independent enquiries prior to placing their bid as this will be binding.
On street
Mains.
Mains.
Mains.
Mains gas.
Standard brick.
Surface water low.
Standard and Ultrafast available.
O2, EE, Three and Vodafone available
Please be advised that floor measurements are currently not available. Prospective buyers are advised to make all necessary independent enquiries before placing their bid, as this will be binding.
These sales details are awaiting vendor approval.
Freehold. Vacant possession upon completion.
Auction Details
The sale of this property will take place on the stated date by way of Auction Event and is being sold as Unconditional with Variable Fee (England and Wales).
Binding contracts of sale will be exchanged at the point of sale.
All sales are subject to SDL Property Auctions Buyers Terms. Properties located in Scotland will be subject to applicable Scottish law.
Auction Deposit and Fees
The following deposits and non- refundable auctioneers fees apply:
• 5% deposit (subject to a minimum of £5,000)
• Buyers Fee of 4.8% of the purchase price for properties sold for up to £250,000, or 3.6% of the purchase price for properties sold for over £250,000 (in all cases, subject to a minimum of £6,000 inc. VAT). For worked examples please refer to the Auction Conduct Guide.
The Buyers Fee does not contribute to the purchase price, however it will be taken into account when calculating the Stamp Duty Land Tax for the property (known as Land and Buildings Transaction Tax for properties located in Scotland), because it forms part of the chargeable consideration for the property.
There may be additional fees listed in the Special Conditions of Sale, which will be available to view within the Legal Pack. You must read the Legal Pack carefully before bidding.
Additional Information
For full details about all auction methods and sale types please refer to the Auction Conduct Guide which can be viewed on the SDL Property Auctions home page.
This guide includes details on the auction registration process, your payment obligations and how to view the Legal Pack (and any applicable Home Report for residential Scottish properties).
Guide Price & Reserve Price
Each property sold is subject to a Reserve Price. The Reserve Price will be within + or - 10% of the Guide Price. The Guide Price is issued solely as a guide so that a buyer can consider whether or not to pursue their interest. A full definition can be found within the Buyers Terms.











