Terraced House
A two/three bedroomed mid-terraced house close to Great Yarmouth town centre and having river views from the front.
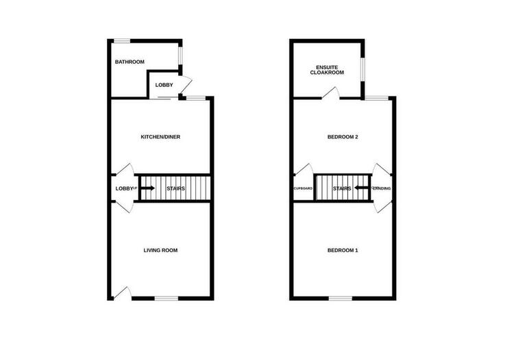
The house is in need of modernisation and improvement and has accommodation of sitting room (front aspect), kitchen/diner (rear aspect) and shower room on the ground floor (rear aspect) with two bedrooms to the first floor and an en-suite cloakroom which could be converted back to a third bedroom.
Outside there is a yard area to the rear.
DIRECTIONS:
For SatNav use NR30 1JY. If using What3Words Navigation search: oven.hotel.wipe
VIEWINGS:
On-site viewing strictly by appointment. Call 01502 558538 to arrange.
3.65m x 3.32m
With stairs to first floor.
3.62m x 3.01m max (2.21m min)
L-shaped bathroom.
Leading to -
3.34m x 3.30m - River view.
3.67m x 2.27m
1.87m x 1.87m - possible bedroom three.
Rear courtyard enclosed with high brick wall measuring approx 2 m x 2 m with gate giving access to rear.
We believe the property to be of traditional brick under tiled roof construction.
Great Yarmouth Council.
Mains water (Essex and Suffolk Water), Sewerage (Anglian Water), Mains electricity.
Rivers and the sea: Medium risk. Surface water: Medium risk.
Standard 17 mbps and Superfast 40 mbps are available in this location
O2, EE, Three and Vodafone available in this location.
Sky and BT are available in this location.
Please be advised that whilst our joint agent has conducted an inspection, the auctioneers have not personally inspected the property. Prospective buyers are advised to make a viewing enquiry and any other necessary independent enquiries before placing their bid, as this will be binding.
These sales details are awaiting vendor approval.
Freehold. Vacant possession upon completion.
Auction Details
The sale of this property will take place on the stated date by way of Auction Event and is being sold as Unconditional with Fixed Fee.
Binding contracts of sale will be exchanged at the point of sale.
All sales are subject to SDL Property Auctions Buyers Terms. Properties located in Scotland will be subject to applicable Scottish law.
Auction Deposit and Fees
The following deposits and non- refundable auctioneers fee apply:
• 10% deposit (subject to a minimum of £5,000)
• Buyers Fee of £2,000 inc. VAT
The Buyers Fee does not contribute to the purchase price, however it will be taken into account when calculating the Stamp Duty Land Tax for the property (known as Land and Buildings Transaction Tax for properties located in Scotland), because it forms part of the chargeable consideration for the property.
There may be additional fees listed in the Special Conditions of Sale, which will be available to view within the Legal Pack. You must read the Legal Pack carefully before bidding.
Additional Information
For full details about all auction methods and sale types please refer to the Auction Conduct Guide which can be viewed on the SDL Property Auctions home page.
This guide includes details on the auction registration process, your payment obligations and how to view the Legal Pack (and any applicable Home Report for residential Scottish properties).
Guide Price & Reserve Price
Each property sold is subject to a Reserve Price. The Reserve Price will be within + or - 10% of the Guide Price. The Guide Price is issued solely as a guide so that a buyer can consider whether or not to pursue their interest. A full definition can be found within the Buyers Terms.




















