Land
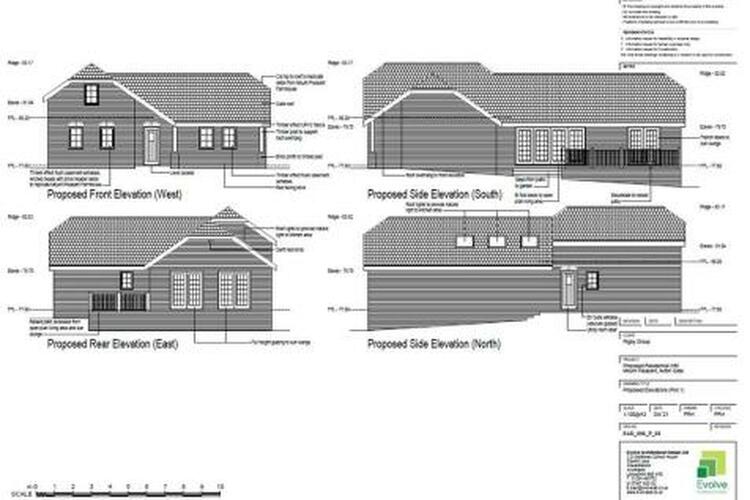
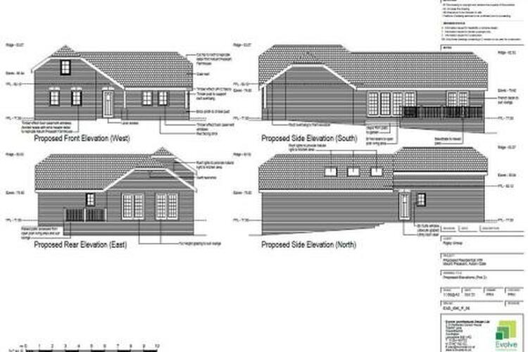
Planning permission was granted by South Staffordshire Council against application 21/01307/FUL dated 4th July 2022. We advise all interested parties to inspect the decision notice and various conditions, and the Section 106 agreement which will be made available within the legal pack.
The existing period properties are full of character however do require full refurbishment. We are informed a recent fire has caused additional damage to the Farmhouse. As a result, there is no access available for internal viewing of both properties
The current foul drainage is private and serves both of these properties in addition to a neighbouring property. There will have to be an undertaking regarding the drainage to the existing house and neighbours, therefore the responsibility of the purchaser.
Note: The properties are part of a terrace and the Cottage does have a flying freehold.
Services: Mains water, electricity and gas are believed to be connected to the property but purchasers are advised to satisfy themselves as to their suitability.
Please be advised that there is no access available for this property. Prospective buyers, particularly those relying on financing options who may require a survey, are advised to make all necessary independent enquiries prior to placing their bid as this will be binding.
Freehold. Vacant possession upon completion.
Auction Details
The sale of this property will take place on the stated date by way of Auction Event and is being sold as Unconditional with Fixed Fee.
Binding contracts of sale will be exchanged at the point of sale.
All sales are subject to SDL Property Auctions Buyers Terms. Properties located in Scotland will be subject to applicable Scottish law.
Auction Deposit and Fees
The following deposits and non- refundable auctioneers fee apply:
• 10% deposit (subject to a minimum of £5,000)
• Buyers Fee of £1,500 inc. VAT
The Buyers Fee does not contribute to the purchase price, however it will be taken into account when calculating the Stamp Duty Land Tax for the property (known as Land and Buildings Transaction Tax for properties located in Scotland), because it forms part of the chargeable consideration for the property.
There may be additional fees listed in the Special Conditions of Sale, which will be available to view within the Legal Pack. You must read the Legal Pack carefully before bidding.
Additional Information
For full details about all auction methods and sale types please refer to the Auction Conduct Guide which can be viewed on the SDL Property Auctions home page.
This guide includes details on the auction registration process, your payment obligations and how to view the Legal Pack (and any applicable Home Report for residential Scottish properties).
Guide Price & Reserve Price
Each property sold is subject to a Reserve Price. The Reserve Price will be within + or - 10% of the Guide Price. The Guide Price is issued solely as a guide so that a buyer can consider whether or not to pursue their interest. A full definition can be found within the Buyers Terms.




















