Semi-detached house
Semi detached family home to be sold with tenants in situ in the Abbey Hulton area of Stoke-on-Trent.
The property is currently let for £505 per calendar month, and does need some modernisation.
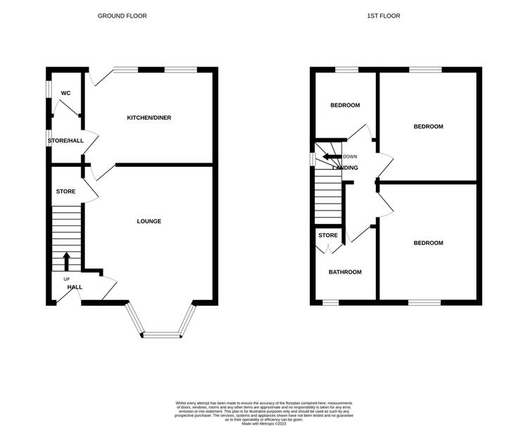
The accommodation includes entrance hall, lounge, kitchen diner, ground floor W/C, three first floor bedrooms and a family bathroom. The property also includes front and rear gardens.
Additional Information
Parking Arrangements: On street
Water: Mains
Electric: Mains
Sewerage: Mains
Heating: Mains gas
Building construction: Brick
Flood Risk: Very low
Broadband: Standard, Superfast and Ultrafast
Mobile Signal: O2, EE, Three and Vodafone
Satellite and Cable TV Availability: BT, Sky and Virgin
UPVC double glazed front door, stairs to first floor, gas meter, ceiling light point, door to lounge.
Walk in UPVC double glazed window to front, radiator, alcove storage and shelving above, ceiling light point, door to under stairs storage with wall mounted boiler, door to kitchen.
Fitted units to wall and base level with roll edge work surfaces incorporating a stainless steel sink and drainer with mixer tap, space for fridge freezer, cooker space, space for washing machine, radiator, door to outside, two UPVC double glazed windows to rear, strip light point, door to inner hall/storage.
UPVC double glazed window to side, electric point, part tiled walls, door to W/C.
UPVC double glazed window to side, W/C, tiled flooring, part tiled walls, ceiling light point.
Loft access, UPVC double glazed window to side, ceiling light point.
UPVC double glazed window to front, fitted mirror fronted slide robes, double radiator, ceiling light point.
UPVC double glazed window to rear, double radiator, ceiling light point.
UPVC double glazed window to rear, radiator, ceiling light point.
White suite comprising W/C, pedestal wash hand basin with hot and cold taps, bath with hot and cold taps and wall mounted electric shower over, UPVC double glazed window to front, high level doors to over stairs bulk head storage with shelving, part tiled walls, ceiling light point.
Gate access with path to front door, paved and gravel garden area with shrubs, side gate access to rear.
Steps down to patio area leading to garden laid to lawn with storage shed and bedding areas.
Prospective buyers are advised to make all necessary independent enquiries prior to placing their bid as this will be binding.
These sales details are awaiting vendor approval.
Freehold. Subject to tenancy.
Auction Details
The sale of this property will take place on the stated date by way of Auction Event and is being sold as Unconditional with Variable Fee (England and Wales).
Binding contracts of sale will be exchanged at the point of sale.
All sales are subject to SDL Property Auctions Buyers Terms. Properties located in Scotland will be subject to applicable Scottish law.
Auction Deposit and Fees
The following deposits and non- refundable auctioneers fees apply:
• 5% deposit (subject to a minimum of £5,000)
• Buyers Fee of 4.8% of the purchase price for properties sold for up to £250,000, or 3.6% of the purchase price for properties sold for over £250,000 (in all cases, subject to a minimum of £6,000 inc. VAT). For worked examples please refer to the Auction Conduct Guide.
The Buyers Fee does not contribute to the purchase price, however it will be taken into account when calculating the Stamp Duty Land Tax for the property (known as Land and Buildings Transaction Tax for properties located in Scotland), because it forms part of the chargeable consideration for the property.
There may be additional fees listed in the Special Conditions of Sale, which will be available to view within the Legal Pack. You must read the Legal Pack carefully before bidding.
Additional Information
For full details about all auction methods and sale types please refer to the Auction Conduct Guide which can be viewed on the SDL Property Auctions home page.
This guide includes details on the auction registration process, your payment obligations and how to view the Legal Pack (and any applicable Home Report for residential Scottish properties).
Guide Price & Reserve Price
Each property sold is subject to a Reserve Price. The Reserve Price will be within + or - 10% of the Guide Price. The Guide Price is issued solely as a guide so that a buyer can consider whether or not to pursue their interest. A full definition can be found within the Buyers Terms.










