Residential Development
Situated in the heart of the sought after village of Mickleover within easy walking distance of doctors, library, pubs and shops, is this exciting development opportunity.
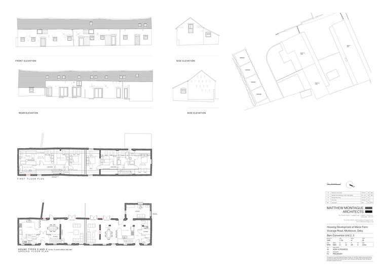
Manor Farm comprises a detached period Grade II Listed farmhouse along with gardens and a courtyard of large barns having full detailed planning consent (Derby City Council: 22/01233/FUL) for conversion into three dwellings.
Given its superb location, the site also has potential for alternate commercial uses subject to obtaining the appropriate planning consent. Prospective buyers must make all necessary independent enquiries in this respect for their specific, intended use prior to placing their bid, as this will be binding.
Freehold with vacant possession.
Additional Information:
Services:
Water - Mains
Drainage - Mains
Heating: Mains gas
Building construction: Solid brick
Conservation Area: The property is located in a Conservation area.
Broadband: Standard, Superfast and Ultrafast are available in this location.
Mobile Signal: EE, O2, Vodaphone and Three are available in this location for Voice and Data.
Satellite and Cable TV Availability: Sky, Virgin and BT are available in this location.
Please be advised that the auctioneers have not personally inspected the property. Prospective buyers are advised to make a viewing enquiry and any other necessary independent enquiries before placing their bid, as this will be binding.
Freehold. Vacant possession upon completion.
Auction Details
The sale of this property will take place on the stated date by way of Auction Event and is being sold as Unconditional with Fixed Fee.
Binding contracts of sale will be exchanged at the point of sale.
All sales are subject to SDL Property Auctions Buyers Terms. Properties located in Scotland will be subject to applicable Scottish law.
Auction Deposit and Fees
The following deposits and non- refundable auctioneers fee apply:
• 10% deposit (subject to a minimum of £5,000)
• Buyers Fee of £1,500 inc. VAT
The Buyers Fee does not contribute to the purchase price, however it will be taken into account when calculating the Stamp Duty Land Tax for the property (known as Land and Buildings Transaction Tax for properties located in Scotland), because it forms part of the chargeable consideration for the property.
There may be additional fees listed in the Special Conditions of Sale, which will be available to view within the Legal Pack. You must read the Legal Pack carefully before bidding.
Additional Information
For full details about all auction methods and sale types please refer to the Auction Conduct Guide which can be viewed on the SDL Property Auctions home page.
This guide includes details on the auction registration process, your payment obligations and how to view the Legal Pack (and any applicable Home Report for residential Scottish properties).
Please Note:
Under the Estate Agents Act 1979 we are required to declare any conflict of interest. The seller of this property is related to an employee of SDL Auctions. If you have any queries regarding this, please contact us for further information.
Guide Price & Reserve Price
Each property sold is subject to a Reserve Price. The Reserve Price will be within + or - 10% of the Guide Price. The Guide Price is issued solely as a guide so that a buyer can consider whether or not to pursue their interest. A full definition can be found within the Buyers Terms.














