Land
Former pub with planning (lapsed) for 2 x commercial and 7 x residential units.
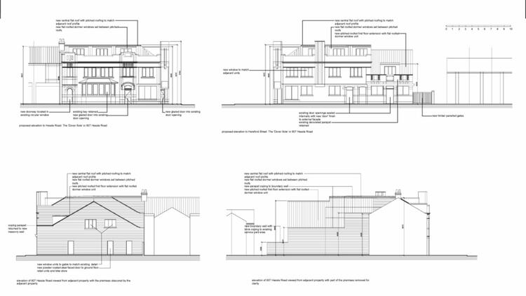
A part demolished former pub located along Hessle Road, Hull. The building has been part demolished as part of the planning consent for the creation of 2 X retail units with 7 apartments above. The planning was granted in 2018 and we believe it has now lapsed although demolition works took place. Interested parties are advised to carry out their own research and inspect the planning documents on the Hull City Council planning portal 17/01336/full.
Services
Services are believed to be available within the vicinity of the site; however, interested parties should independently satisfy themselves as to the availability and suitability of any services for their Specific requirement.
Rights of Way, Wayleaves, Easements, Restrictive Covenants ETC
The site is sold subject to or with the benefit of any Rights of Way, Wayleaves, Easements, Restrictive Covenants, which may exist whether mentioned in these particulars or not. For further information in relation to these matters please refer to the legal pack.
Value Added Tax
We are advised that VAT will not be chargeable on this transaction.
Viewings
The site is open for viewings.
Please be advised that the auctioneers have not personally inspected the land. Prospective buyers are advised to make a viewing enquiry and any other necessary independent enquiries before placing their bid, as this will be binding.
Freehold. Vacant possession upon completion.
Auction Details
The sale of this property will take place on the stated date by way of Auction Event and is being sold as Unconditional with Fixed Fee.
Binding contracts of sale will be exchanged at the point of sale.
All sales are subject to SDL Property Auctions Buyers Terms. Properties located in Scotland will be subject to applicable Scottish law.
Auction Deposit and Fees
The following deposits and non- refundable auctioneers fee apply:
• 10% deposit (subject to a minimum of £5,000)
• Buyers Fee of £1,500 inc. VAT
The Buyers Fee does not contribute to the purchase price, however it will be taken into account when calculating the Stamp Duty Land Tax for the property (known as Land and Buildings Transaction Tax for properties located in Scotland), because it forms part of the chargeable consideration for the property.
There may be additional fees listed in the Special Conditions of Sale, which will be available to view within the Legal Pack. You must read the Legal Pack carefully before bidding.
Additional Information
For full details about all auction methods and sale types please refer to the Auction Conduct Guide which can be viewed on the SDL Property Auctions home page.
This guide includes details on the auction registration process, your payment obligations and how to view the Legal Pack (and any applicable Home Report for residential Scottish properties).
Guide Price & Reserve Price
Each property sold is subject to a Reserve Price. The Reserve Price will be within + or - 10% of the Guide Price. The Guide Price is issued solely as a guide so that a buyer can consider whether or not to pursue their interest. A full definition can be found within the Buyers Terms.





