Link detached house
A 5 bedroom character property with a wealth of character and features.
Similar properties on the street have been renovated to family homes as well as others which have been converted to apartments.
This property benefits from having granted planning permission in place for the extension and conversion of flats. Ref: 23/00104/COU
Offering 1,800 sq ft of accommodation and more with the outbuildings.
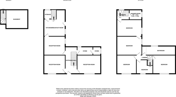
Set in a very popular residential location, occupying a substantial walled plot and overlooking the church. This property currently boasts 5 bedrooms, 3 reception rooms, a refitted kitchen, 2 refitted bathrooms, a cellar, 3 staircases and a lot of potential.
Rare opportunity to renovate a character home.
Entrance Hall, Lounge, Dining Room, Sitting Room, Breakfast/Kitchen/Dining Room, Storage Room and Cellar, 5 Bedrooms, 2 Bathrooms, 3 Staircases. Outside WC and Utility Room, and a range of outbuildings.
Planning has been approved by Lichfield District Council. Ref: 23/00104/COU. The decision issued date is 19th Apr 2023, and the proposal states: Change of use of dwelling house and outbuilding to form 5 No. C3 supported living flats including erection of rear extensions to main dwelling and outbuilding, conversion of outbuilding to form 1No. flat and single storey timber cabin in rear garden to form staff room.
Prospective buyers are advised to make all necessary independent enquiries prior to placing their bid as this will be binding.
Freehold. Vacant possession upon completion.
Auction Details
The sale of this property will take place on the stated date by way of Auction Event and is being sold as Unconditional with Variable Fee (England and Wales).
Binding contracts of sale will be exchanged at the point of sale.
All sales are subject to SDL Property Auctions Buyers Terms. Properties located in Scotland will be subject to applicable Scottish law.
Auction Deposit and Fees
The following deposits and non- refundable auctioneers fees apply:
• 5% deposit (subject to a minimum of £5,000)
• Buyers Fee of 4.8% of the purchase price for properties sold for up to £250,000, or 3.6% of the purchase price for properties sold for over £250,000 (in all cases, subject to a minimum of £6,000 inc. VAT). For worked examples please refer to the Auction Conduct Guide.
The Buyers Fee does not contribute to the purchase price, however it will be taken into account when calculating the Stamp Duty Land Tax for the property (known as Land and Buildings Transaction Tax for properties located in Scotland), because it forms part of the chargeable consideration for the property.
There may be additional fees listed in the Special Conditions of Sale, which will be available to view within the Legal Pack. You must read the Legal Pack carefully before bidding.
Additional Information
For full details about all auction methods and sale types please refer to the Auction Conduct Guide which can be viewed on the SDL Property Auctions home page.
This guide includes details on the auction registration process, your payment obligations and how to view the Legal Pack (and any applicable Home Report for residential Scottish properties).
Guide Price & Reserve Price
Each property sold is subject to a Reserve Price. The Reserve Price will be within + or - 10% of the Guide Price. The Guide Price is issued solely as a guide so that a buyer can consider whether or not to pursue their interest. A full definition can be found within the Buyers Terms.


























