Residential Development
The site comprises an L shaped parcel of land extending to 0.29 acres, which has been developed to varying levels. The bungalow has been built to shell with roof, windows, floor and brickwork complete. The townhouses have been built with block and beam floor, drainage connected and outer brickwork to DPC.
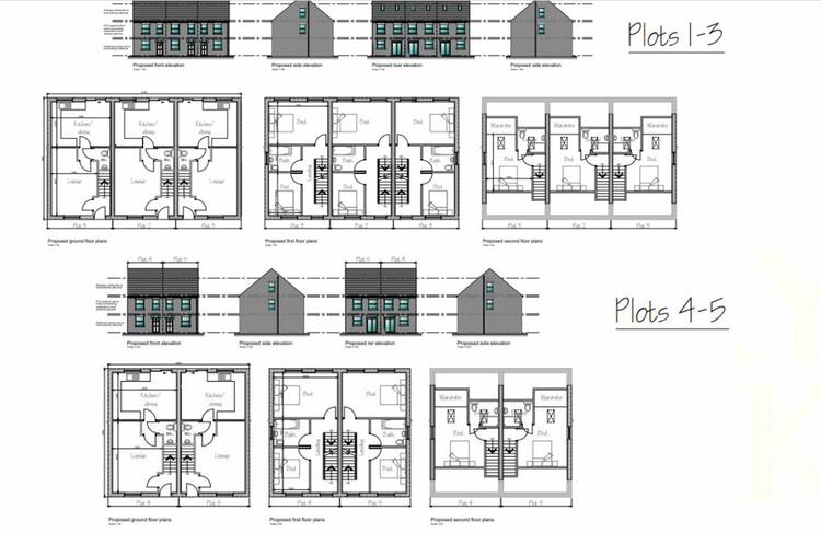
The site benefits from planning permission (Application 16/00088/FUL) to construct 5x 3 bedroom, three-storey townhouses and 1x 2 bedroom bungalow. The townhouses will comprise a lounge, kitchen diner, 3 bedrooms, bathroom and en-suite to master. The bungalow comprises a lounge/kitchen diner, 2 bedrooms and bathroom. Each plot will come with 2 x parking spaces.
The site represents a great opportunity to finish off a development in a popular residential location in Silverdale.
LOCATION
The site has frontage to Church Street and side on to Chapel Street, where similar newbuild property already exists. The location is a 10 minute walk from the popular walking location of Silverdale Country Park.
SITE AREA
Using Ordinance Survey ProMap we calculate the site to extend to 0.29 acres.
PLANNING PERMISSION
On the 3rd February 2016 Newcastle-under-Lyme borough Council granted full permission (Application no: 16/00088/FUL) to build proposed housing development of 6 dwellings.
GROSS DEVELOPMENT VALUE
The scheme comprises the following
5 x 3 bed townhouses
1 x 2 bed bungalow
The agents estimate that the 3 bedroom townhouses should achieve circa £195,000 and the bungalow £210,000 depending on specification.
The above generates a gross development value in the region of £1,185,000.
SERVICES
We understand that no mains services are connected but are available. We advise interested parties to make their own enquiries with the relevant utility companies.
VAT
The sale price is not subject to VAT.
TENURE
Available freehold
May be suitable for alternative uses, subject to obtaining the necessary consents. Prospective buyers must make all necessary independent enquiries in this respect for their specific, intended use prior to placing their bid, as this will be binding.
Prospective buyers are advised to make all necessary independent enquiries prior to placing their bid as this will be binding.
These sales details are awaiting vendor approval.
Freehold. Vacant possession upon completion.
Auction Details
The sale of this property will take place on the stated date by way of Auction Event and is being sold as Unconditional with Variable Fee (England and Wales).
Binding contracts of sale will be exchanged at the point of sale.
All sales are subject to SDL Property Auctions Buyers Terms. Properties located in Scotland will be subject to applicable Scottish law.
Auction Deposit and Fees
The following deposits and non- refundable auctioneers fees apply:
• 5% deposit (subject to a minimum of £5,000)
• Buyers Fee of 4.8% of the purchase price for properties sold for up to £250,000, or 3.6% of the purchase price for properties sold for over £250,000 (in all cases, subject to a minimum of £6,000 inc. VAT). For worked examples please refer to the Auction Conduct Guide.
The Buyers Fee does not contribute to the purchase price, however it will be taken into account when calculating the Stamp Duty Land Tax for the property (known as Land and Buildings Transaction Tax for properties located in Scotland), because it forms part of the chargeable consideration for the property.
There may be additional fees listed in the Special Conditions of Sale, which will be available to view within the Legal Pack. You must read the Legal Pack carefully before bidding.
Additional Information
For full details about all auction methods and sale types please refer to the Auction Conduct Guide which can be viewed on the SDL Property Auctions home page.
This guide includes details on the auction registration process, your payment obligations and how to view the Legal Pack (and any applicable Home Report for residential Scottish properties).
Guide Price & Reserve Price
Each property sold is subject to a Reserve Price. The Reserve Price will be within + or - 10% of the Guide Price. The Guide Price is issued solely as a guide so that a buyer can consider whether or not to pursue their interest. A full definition can be found within the Buyers Terms.






