Block of Apartments
Excellent potential investment opportunity currently used as two self contained flats. No Onward Chain with potential for further improvement and extension (subject to planning permissions).
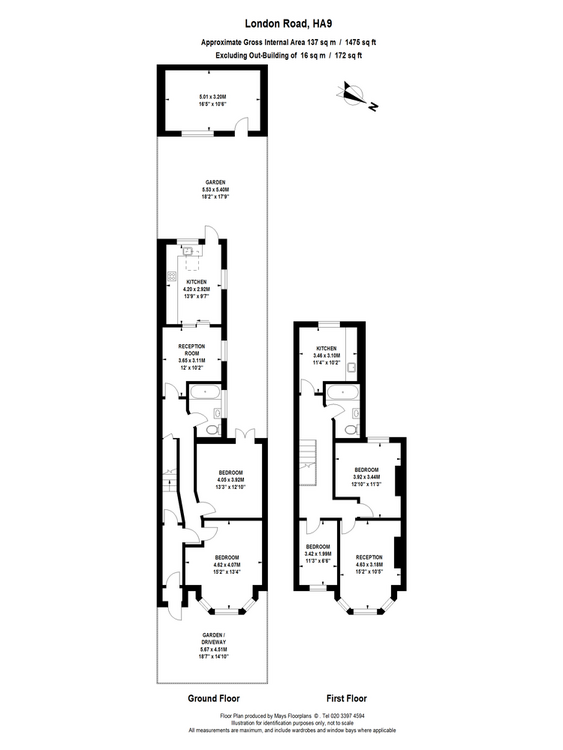
Victorian terraced property converted into two self-contained flats with potential for a further side and roof extension (subject to planning). The property benefits from part modernisation, UPVC double-glazing, rear garden, external detached building suitable for home office and off-street parking space.
Ground floor flat comprises of a modern fitted kitchen with integrated oven, hob and extractor, living room, two good sized bedrooms all with high ceilings and neutral decor, fitted bathroom, private garden to the rear with detached brick-built building suitable for home office, plus off-street parking.
First floor flat comprises of kitchen, three bedrooms and bathroom with scope for improvement.
The property occupies a great location for commuters within 0.2 miles of Wembley Central Station, 0.4 miles of Wembley Stadium Station and 0.7 miles of Alperton Station of the transport. The shopping hub of Wembley including designer outlet is close by. The open space of King Edward VII Park is also within easy reach.
Buyers are to note the existence of Japanese Knotweed at the property. Further documents are available to view within the legal documents. Prospective buyers are advised to make all necessary independent enquiries prior to placing their bid as this will be binding.
Please be advised that, whilst our joint agent may have conducted an inspection, the auctioneers have not personally inspected the property. Prospective buyers are advised to make a viewing enquiry and any other necessary independent enquiries before placing their bid, as this will be binding.
Prospective buyers are advised to make all necessary independent enquiries prior to placing their bid as this will be binding.
Freehold. Vacant possession upon completion.
Auction Details
The sale of this property will take place on the stated date by way of Auction Event and is being sold as Unconditional with Variable Fee (England and Wales).
Binding contracts of sale will be exchanged at the point of sale.
All sales are subject to SDL Property Auctions Buyers Terms. Properties located in Scotland will be subject to applicable Scottish law.
Auction Deposit and Fees
The following deposits and non- refundable auctioneers fees apply:
• 5% deposit (subject to a minimum of £5,000)
• Buyers Fee of 4.8% of the purchase price for properties sold for up to £250,000, or 3.6% of the purchase price for properties sold for over £250,000 (in all cases, subject to a minimum of £6,000 inc. VAT). For worked examples please refer to the Auction Conduct Guide.
The Buyers Fee does not contribute to the purchase price, however it will be taken into account when calculating the Stamp Duty Land Tax for the property (known as Land and Buildings Transaction Tax for properties located in Scotland), because it forms part of the chargeable consideration for the property.
There may be additional fees listed in the Special Conditions of Sale, which will be available to view within the Legal Pack. You must read the Legal Pack carefully before bidding.
Additional Information
For full details about all auction methods and sale types please refer to the Auction Conduct Guide which can be viewed on the SDL Property Auctions home page.
This guide includes details on the auction registration process, your payment obligations and how to view the Legal Pack (and any applicable Home Report for residential Scottish properties).
Guide Price & Reserve Price
Each property sold is subject to a Reserve Price. The Reserve Price will be within + or - 10% of the Guide Price. The Guide Price is issued solely as a guide so that a buyer can consider whether or not to pursue their interest. A full definition can be found within the Buyers Terms.










