Terraced House
A spacious three bedroom terraced house.
The property is in general good order and benefits from gas central heating and upvc double glazing. There is a small garden to the front and pleasant, lawned, rear garden.
Well placed for local amenities and giving easy access to Burton town centre.
An potential buy to let investment with estimated rental value of £750 per calendar month/£9,000 per annum (based on comparable evidence). A potential return of over 10% against the guide price. Prospective buyers are advised to make all necessary independent enquiries prior to placing their bid as this will be binding.
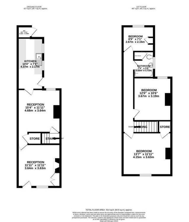
With laminate wood floor, radiator and window to front aspect.
With laminate wood floor, radiator and window to rear aspect.
Having a range of base and wall units, work surfaces and Stainless Steel sink. Cooker with electric oven and hob an dextractor over. Window and door to side aspect.
With doors to the three bedrooms and bathroom.
With radiator and window to front aspect.
Having radiator and window to rear.
Having radiator and window to rear.
With white 3 piece suite comprising low flush w.c. wash hand basin and panel bath. Part tiled walls and window to side aspect.
The property benefits from a small forecourt garden. To the rear is a good size garden with lawn and useful brick store.
These sales details are awaiting vendor approval.
Freehold. Vacant possession upon completion.
Auction Details
The sale of this property will take place on the stated date by way of Auction Event and is being sold as Unconditional with Variable Fee (England and Wales).
Binding contracts of sale will be exchanged at the point of sale.
All sales are subject to SDL Property Auctions Buyers Terms. Properties located in Scotland will be subject to applicable Scottish law.
Auction Deposit and Fees
The following deposits and non- refundable auctioneers fees apply:
• 5% deposit (subject to a minimum of £5,000)
• Buyers Fee of 4.8% of the purchase price for properties sold for up to £250,000, or 3.6% of the purchase price for properties sold for over £250,000 (in all cases, subject to a minimum of £6,000 inc. VAT). For worked examples please refer to the Auction Conduct Guide.
The Buyers Fee does not contribute to the purchase price, however it will be taken into account when calculating the Stamp Duty Land Tax for the property (known as Land and Buildings Transaction Tax for properties located in Scotland), because it forms part of the chargeable consideration for the property.
There may be additional fees listed in the Special Conditions of Sale, which will be available to view within the Legal Pack. You must read the Legal Pack carefully before bidding.
Additional Information
For full details about all auction methods and sale types please refer to the Auction Conduct Guide which can be viewed on the SDL Property Auctions home page.
This guide includes details on the auction registration process, your payment obligations and how to view the Legal Pack (and any applicable Home Report for residential Scottish properties).
Guide Price & Reserve Price
Each property sold is subject to a Reserve Price. The Reserve Price will be within + or - 10% of the Guide Price. The Guide Price is issued solely as a guide so that a buyer can consider whether or not to pursue their interest. A full definition can be found within the Buyers Terms.











