Commercial Property
A freehold commercial Investment opportunity located in Tunstall currently part let generating £11,280 per annum comprising two ground floor retail units along with five self-contained offices above plus a garage used previously as self storage. There is scope to increase the rental income to circa £25,000 per annum by letting the vacant parts. Prospective buyers are advised to make all necessary independent enquiries prior to placing their bid as this will be binding.
Interested parties are advised to inspect the legal pack for more information.{tab}
Currently vacant.
Currently vacant.
Currently vacant.
Currently let on a rolling basis at £3,600 per annum.
Currently let on a rolling basis at £3,300 per annum.
Currently let on a rolling basis at £4,380 per annum.
Currently vacant.
Currently vacant.
£11,280 per annum
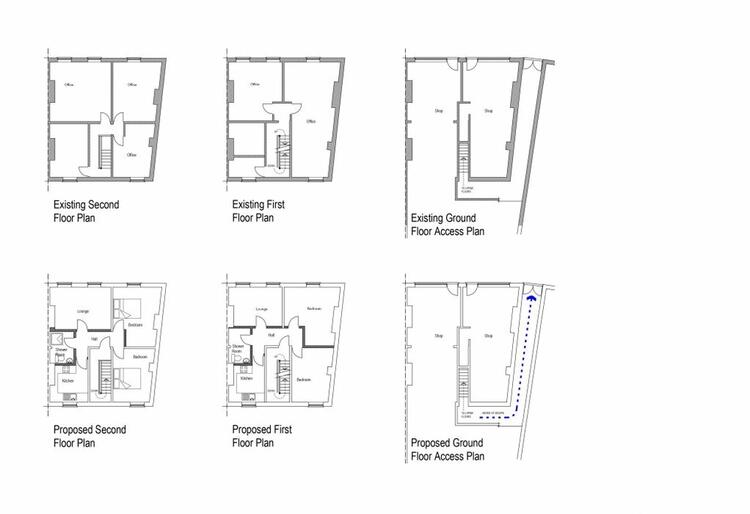
Proposed plans (subject to relevant permissions) are as seen in images. Prospective buyers are advised to make all necessary independent enquiries prior to placing their bid as this will be binding.
Please be advised that the auctioneers have not personally inspected the property. Prospective buyers are advised to make a viewing enquiry and any other necessary independent enquiries before placing their bid, as this will be binding.
Freehold. Part let/part vacant.
Auction Details
The sale of this property will take place on the stated date by way of Auction Event and is being sold as Unconditional with Variable Fee (England and Wales).
Binding contracts of sale will be exchanged at the point of sale.
All sales are subject to SDL Property Auctions Buyers Terms. Properties located in Scotland will be subject to applicable Scottish law.
Auction Deposit and Fees
The following deposits and non- refundable auctioneers fees apply:
• 5% deposit (subject to a minimum of £5,000)
• Buyers Fee of 4.8% of the purchase price for properties sold for up to £250,000, or 3.6% of the purchase price for properties sold for over £250,000 (in all cases, subject to a minimum of £6,000 inc. VAT). For worked examples please refer to the Auction Conduct Guide.
The Buyers Fee does not contribute to the purchase price, however it will be taken into account when calculating the Stamp Duty Land Tax for the property (known as Land and Buildings Transaction Tax for properties located in Scotland), because it forms part of the chargeable consideration for the property.
There may be additional fees listed in the Special Conditions of Sale, which will be available to view within the Legal Pack. You must read the Legal Pack carefully before bidding.
Additional Information
For full details about all auction methods and sale types please refer to the Auction Conduct Guide which can be viewed on the SDL Property Auctions home page.
This guide includes details on the auction registration process, your payment obligations and how to view the Legal Pack (and any applicable Home Report for residential Scottish properties).
Guide Price & Reserve Price
Each property sold is subject to a Reserve Price. The Reserve Price will be within + or - 10% of the Guide Price. The Guide Price is issued solely as a guide so that a buyer can consider whether or not to pursue their interest. A full definition can be found within the Buyers Terms.




_t202308240937.jpg?&uuid=sdl_website)

_t202308240938.jpg?&uuid=sdl_website)

_t202308240938.jpg?&uuid=sdl_website)



_t202308240938.jpg?&uuid=sdl_website)





