Commercial Property
An imposing vacant freehold row of three terrace properties of period offices together with a rear workshop. Having the benefit of planning permission for a residential conversion but also considered suitable for a variety of alternative uses including medical, educational, day nursery and religious subject to obtaining the appropriate planning permission.
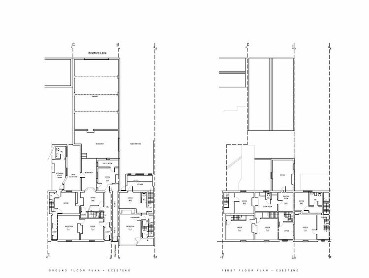
An imposing three storey terrace of office premises with rendered front elevations surmounted by a pitched tile clad roof and set behind a parapet wall.
We are advised that numbers 32 and 33 are Grade II Listed.
The main property provides flexible space, considered suitable for a variety of alternative uses including residential, refurbishment for a continuation for office use, educational, medical, religious or day nursery, subject to obtaining the necessary planning consents. It should be noted that parts of the building are in need of repair and full modernisation.
In addition the sale also includes 2 Bradford Lane situated to the rear of the main building this comprises a separate brick built workshop/industrial unit with roller shutter access directly from Bradford Lane and provides secure parking. We understand that the property has been in the same family ownership since the mid 1950s.
32-34 Bradford Street: NIA approximately 3,655 sq.ft. - 339.58sqm.<br>2 Bradford Lane: Approx 1,016 sq.ft- 94.43sqm. Please note Bradford Lane is registered as Land on the North West side of Bradford Lane.
The property occupies a prominent frontage to the eastern side of Bradford Street lying between the junctions of Caldmore Road and Vicarage Place within Walsall town centre and being within a short walk of the main retail core. Within the immediate vicinity there is a good mix of professional offices, residential, restaurant and other commercial uses. Walsall is centrally located approximately 9 miles north west of Birmingham, 7 miles east of Wolverhampton and 9 miles from Lichfield.
Planning permission was granted on 28th June 2022 by Walsall Council application number 19/0122. For a proposed change of use and conversion of existing offices to five apartments comprising two 2 bedroom and one 3 bedroom self contained apartments in 32 and 33 Bradford Street and one 1 bedroom and one 2 bedroom self contained apartments in 34 Bradford Street. Removal of rear workshop and the creation of car parking via Bradford Lane. A copy of the planning application and proposed plans will be included in the legal pack.
Please be advised that the auctioneers have not personally inspected the property. Prospective buyers are advised to make a viewing enquiry and any other necessary independent enquiries before placing their bid, as this will be binding.
These sales details are awaiting vendor approval.
Freehold. Vacant possession upon completion.
Auction Details
The sale of this property will take place on the stated date by way of Timed Auction and is being sold as Unconditional with Fixed Fee (England and Wales).
Binding contracts of sale will be exchanged at the point of sale.
All sales are subject to SDL Property Auctions’ Buyers Terms.
Auction Deposit and Fees
The following deposits and non- refundable auctioneer’s fee apply:
• 10% deposit (subject to a minimum of £5,000)
• Buyer’s Fee of £1074 inc. VAT
The Buyer’s Fee does not contribute to the purchase price and will be considered as part of the chargeable consideration for the property in the calculation of stamp duty liability.
There may be additional fees listed in the Special Conditions of Sale, which will be available to view within the Legal Pack. You must read the Legal Pack carefully before bidding.
Additional Information
For full details about all auction methods and sale types please refer to the Auction Conduct Guide which can be viewed on the SDL Property Auctions’ home page.
This guide includes details on the auction registration process, your payment obligations and how to view the Legal Pack.
Guide Price & Reserve Price
Each property sold is subject to a Reserve Price. The Reserve Price will be within + or – 10% of the Guide Price. The Guide Price is issued solely as a guide so that a buyer can consider whether or not to pursue their interest. A full definition can be found within the Buyers Terms.























