Commercial Development
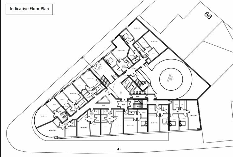
The site comprises and triangular shaped parcel of land extending to 0.34 acres, part of which is clear and part of which still has a number of buildings in place which will need to be demolished. The site now benefits form planning permission (Application 64145/HYB) to demolish the existing buildings and construct a seven-storey residential development offering 23 x two-bedroom units and 37 one-bedroom units, all of which are individually designed and well proportioned, together with 13 onsite car parking spaces.
The site represents a rare opportunity to construct what would become a landmark residential development in the city centre in what is now an established and vibrant location and forms part of the Cultural Quarter.
As an alternative, the site could be purchased and used to provide a rental income from the existing properties. Currently No. 23 is rented at £5,200pa and No. 25 is rented at £10,500pa. We estimate the rental potential (after refurbishment works) to be a further £30,000pa+ depending on the use for each building. Majestic is located just off Piccadilly which continues to be the most popular street and location in the city.
This deal is being sold under auction conditions through our partner company SDL Auctions. Offers will be forward onto the auction company and a legal pack can be made available for interested parties.
LOCATION
The site has a 50-meter frontage to Marsh Street South and a 44-meter frontage to Pall Mall and is centrally located in the City Centre within the very popular Cultural Quarter where a wide range of retail, leisure and office orientated businesses are located.
The recently establish Smithfield development (www.smithfieldstoke.com) is within 200 yards, where over 210,000 sq ft of Grade A office space has already been built and occupied with another 214,000 sq ft in the pipeline. The Hilton Garden Inn hotel and an 11 storey 151 unit apartment block have also been constructed and a 730 space multistorey car park is currently under construction. Festival Park is within a 15-minute walk where a significant number of office businesses are located together with leisure outlets such as Waterworld, the Odeon Cinema and Stoke Ski Centre.
VAT
We are advised that 19-25 Pall Mall are not subject to VAT and that VAT will apply to the sale of 27 Pall Mall.
SITE AREA
Using Ordinance Survey Promap we calculate the site to extend to 0.34 acres.
Located on the site are four buildings, requiring demolition which include:
19-21 Pall Mall: A vacant two storey former retail property
23 Pall Mall: An occupied three storey shop with tenant holding over since 2014.
25 Pall Mall: An occupied three storey restaurant with the tenant holding over since 2019.
27 Pall Mall: A vacant single storey former restaurant premises.
PLANNING
On the 1st of December 2020 Stoke on Trent City Council granted part full/part outline permission (Application no: 64145/HYB) to demolish the existing buildings and construct a seven-storey apartment block comprising 23 x 2-bedroom apartments and 37 x 1-bedroom apartments. Further details can be found at: www.planning.stoke.gov.uk/online-applications/ using ‘ST1 1EB’ in the post code search box.
GROSS DEVELOPMENT VALUE
The apartments range in size from between 50 sq m to 81 sq m with all of the apartments having external recreational areas and a number will also benefit from onsite car parking. The agents estimate that on average the one-bedroom apartments should command a sale price of circa £125,000 with the two-bedroom apartments being in the region of £150,000 which would generate a GDV in the region of £8,000,000.
SERVICES
We understand that all mains services are available although interested parties will need to make their own enquiries of the relevant utility companies.
These sales details are awaiting vendor approval.
Freehold. Part let/part vacant.
Auction Details
The sale of this property will take place on the stated date by way of Auction Event and is being sold as Unconditional with Variable Fee (England and Wales).
Binding contracts of sale will be exchanged at the point of sale.
All sales are subject to SDL Property Auctions’ Buyers Terms.
Auction Deposit and Fees
The following deposits and non- refundable auctioneer’s fees apply:
• 5% deposit (subject to a minimum of £5,000)
• Buyer’s Fee of 4.8% of the purchase price for properties sold for up to £250,000, or 3.6% of the purchase price for properties sold for over £250,000 (in all cases, subject to a minimum of £6,000 inc. VAT). For worked examples please refer to the Auction Conduct Guide.
The Buyer’s Fee does not contribute to the purchase price and will be considered as part of the chargeable consideration for the property in the calculation of stamp duty liability.
There may be additional fees listed in the Special Conditions of Sale, which will be available to view within the Legal Pack. You must read the Legal Pack carefully before bidding.
Additional Information
For full details about all auction methods and sale types please refer to the Auction Conduct Guide which can be viewed on the SDL Property Auctions’ home page.
This guide includes details on the auction registration process, your payment obligations and how to view the Legal Pack.
Guide Price & Reserve Price
Each property sold is subject to a Reserve Price. The Reserve Price will be within + or – 10% of the Guide Price. The Guide Price is issued solely as a guide so that a buyer can consider whether or not to pursue their interest. A full definition can be found within the Buyers Terms.










