Mixed Use
A mixed use property comprising of 2 ground floor retail units and large first floor accommodation with a current rental income of £3120pa
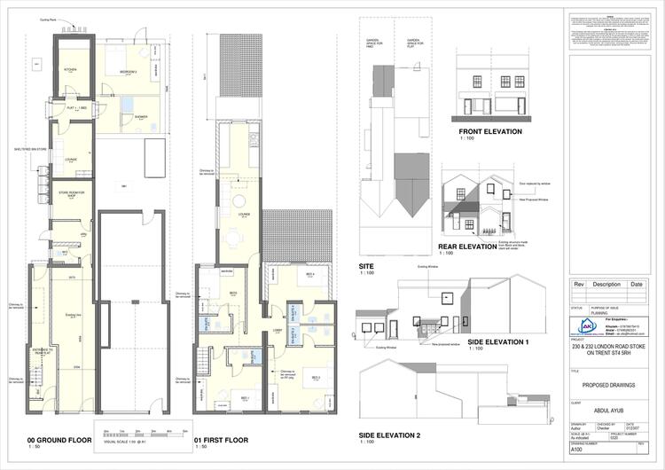
The property benefits from planning consent for the creation of a retail unit (use class E(a)) and one ground floor residential self-contained apartment (use class C3) to No.230, change of use of first floor to a small 4 bed HMO (use class C4) to Nos.230 and 232 and creation of first floor rear extension to No.232 located along the popular London Road Stoke.
No.232 is currently rented with an annual income of £3,120.
Accommodation
230 London Road -
Rear extension room 1 - 78 sq ft (7.23 sq m)
Rear extension behind 232 - 231 sq ft (21.43 sq m)
Reception area - 88 sq ft (8.16 sq m)
Room 1 - 30 sq ft (2.82 sq m)
Room 2 - 32 sq ft (3.01 sq m)
Room 3 - 15 sq ft (1.43 sq m)
Room 4 - 42 sq ft (3.88 sq m)
Room 5 - 46 sq ft (4.27 sq m)
Room 6 - 51 sq ft (4.72 sq m)
Front Room - 146 sq ft (13.55 sq m)
Total - 759 sq ft (70.5 sq m)
232 London Road -
Not internally inspected - 540 sq ft (50.2 sq m)
First Floor Flat is derelict and has not been measured but runs above both shops. The access is via a external metal staircase accessed through the rear entrance of 230
London Road.
Interested parties are advised to inspect the legal pack and the City Of Stoke On Trent Council planning portal reference 67402/FUL
We have been advised by the vendor that once the site has been developed as per the approved plans, the rental income is anticipated to be circa £25k per annum.
PLEASE NOTE: Prospective buyers are advised to make all necessary independent enquiries prior to placing their bid as this will be binding.
These sales details are awaiting vendor approval.
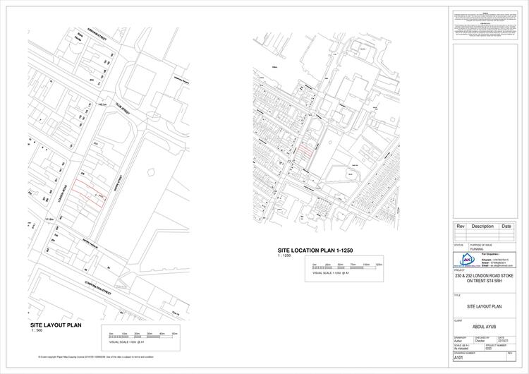
The property is registered as 230 London Road, Stoke-On-Trent (ST4 5RH) & 232 London Road and 10 Empire Street, Stoke-on-Trent.
Freehold. Part let/part vacant.
Auction Details
The sale of this property will take place on the stated date by way of Auction Event and is being sold as Unconditional with Fixed Fee (England and Wales).
Binding contracts of sale will be exchanged at the point of sale.
All sales are subject to SDL Property Auctions’ Buyers Terms.
Auction Deposit and Fees
The following deposits and non- refundable auctioneer’s fee apply:
• 10% deposit (subject to a minimum of £5,000)
• Buyer’s Fee of £1074 inc. VAT
The Buyer’s Fee does not contribute to the purchase price and will be considered as part of the chargeable consideration for the property in the calculation of stamp duty liability.
There may be additional fees listed in the Special Conditions of Sale, which will be available to view within the Legal Pack. You must read the Legal Pack carefully before bidding.
Additional Information
For full details about all auction methods and sale types please refer to the Auction Conduct Guide which can be viewed on the SDL Property Auctions’ home page.
This guide includes details on the auction registration process, your payment obligations and how to view the Legal Pack.
Guide Price & Reserve Price
Each property sold is subject to a Reserve Price. The Reserve Price will be within + or – 10% of the Guide Price. The Guide Price is issued solely as a guide so that a buyer can consider whether or not to pursue their interest. A full definition can be found within the Buyers Terms.











