Land
A superb freehold residential development opportunity to acquire a broadly rectangular and level shaped parcel of land, located at the corner of Perth Street and Tewkesbury Crescent with outline planning permission (22/00999/0ut) granted for the erection of pair of semi-detached dwellings.
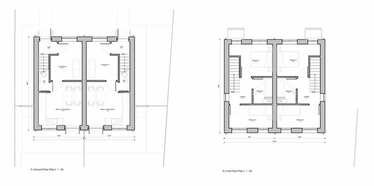
If built in accordance with the approved plans, the architects drawings have illustrated a stylish design of a pair of two bedroomed semi-detached dwellings, both approximately 69 sq.m, are to be set back from the road in line with the existing building line with associated off-road parking spaces located in front of the properties.
The building plot is situated in the context of an established residential location, literally yards away from a parade of shops and local primary school. Derby city centre is a short commute and the nearby A52 provides swift access onto the M1 motorway and the city of Nottingham.
These sales details are awaiting vendor approval.
Prospective buyers are advised to make all necessary independent enquiries prior to placing their bid as this will be binding.
Freehold. Vacant possession upon completion.
Auction Details
The sale of this property will take place on the stated date by way of Auction Event and is being sold as Unconditional with Fixed Fee (England and Wales).
Binding contracts of sale will be exchanged at the point of sale.
All sales are subject to SDL Property Auctions’ Buyers Terms.
Auction Deposit and Fees
The following deposits and non- refundable auctioneer’s fee apply:
• 10% deposit (subject to a minimum of £5,000)
• Buyer’s Fee of £1074 inc. VAT
The Buyer’s Fee does not contribute to the purchase price and will be considered as part of the chargeable consideration for the property in the calculation of stamp duty liability.
There may be additional fees listed in the Special Conditions of Sale, which will be available to view within the Legal Pack. You must read the Legal Pack carefully before bidding.
Additional Information
For full details about all auction methods and sale types please refer to the Auction Conduct Guide which can be viewed on the SDL Property Auctions’ home page.
This guide includes details on the auction registration process, your payment obligations and how to view the Legal Pack.
Guide Price & Reserve Price
Each property sold is subject to a Reserve Price. The Reserve Price will be within + or – 10% of the Guide Price. The Guide Price is issued solely as a guide so that a buyer can consider whether or not to pursue their interest. A full definition can be found within the Buyers Terms.



