Commercial Property
DRAFT DETAILS
Modern and prominent offices with residential conversion opportunity (subject to planning). Approximately 392.33 square metres/4,223 square foot.
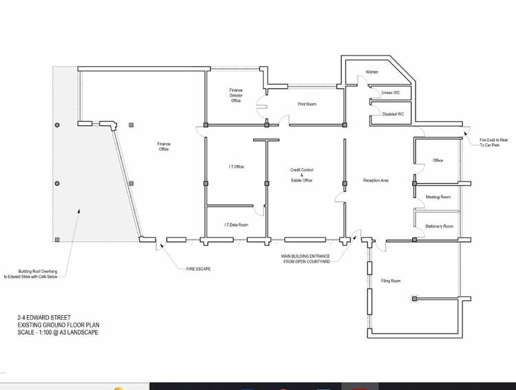
The building forms part of the former Angel Mill development and enjoys frontage onto Edward Street. It is situated over one floor and was last used for office use but could be suitable for conversion in part of whole for residential use, subject to planning.
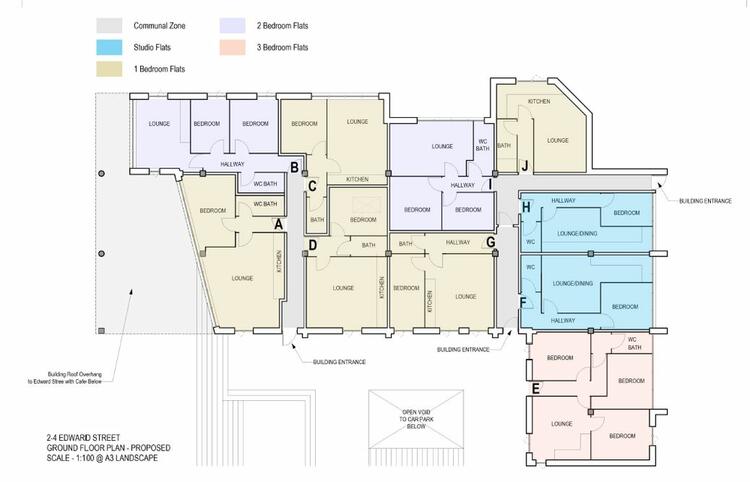
The internal accommodation currently comprises a modern office suite of individual and open plan office rooms, reception, kitchen and WCs. The site could accommodate up to ten residential units being a mix of studio to three bed apartments. Subject to appropriate consents. Prospective buyers are advised to make all necessary independent enquiries prior to placing their bid as this will be binding.
There are three designated car parking spaces at lower ground level.
The property occupies a prominent position on Edward Street located on the edge of Westbury town centre. Westbury is situated in the west of Wiltshire, close to the Somerset border and approximately 29km south east of Bath and 8km south of Trowbridge. Other nearby towns include Devizes, Frome and Warminster. The main A350 road provides links to Wiltshire and Somerset. Westbury is also well served by the railway network, which provides access to key cities including Bath, Bristol Temple Meads
and London Paddington. Nearby occupiers include Morrisons Supermarket and a mix of independent retailers, food outlets and the Angel Public House.
The cafe shown in the images is not included in the sale. Prospective buyers are advised to make all necessary independent enquiries prior to placing their bid as this will be binding.
Length of lease: approximately 93 years remaining Current ground rent: TBC Ground rent review period: TBC Current service charge: TBC Service charge review period: TBC This information should be clarified in the legal pack and we’ll update the information above when we receive it.
We have been informed by the vendor that VAT is not applicable.
Leasehold. Vacant possession upon completion.
Auction Details
The sale of this property will take place on the stated date by way of Auction Event and is being sold as Unconditional with Fixed Fee (England and Wales).
Binding contracts of sale will be exchanged at the point of sale.
All sales are subject to SDL Property Auctions’ Buyers Terms.
Auction Deposit and Fees
The following deposits and non- refundable auctioneer’s fee apply:
• 10% deposit (subject to a minimum of £5,000)
• Buyer’s Fee of £1074 inc. VAT
The Buyer’s Fee does not contribute to the purchase price and will be considered as part of the chargeable consideration for the property in the calculation of stamp duty liability.
There may be additional fees listed in the Special Conditions of Sale, which will be available to view within the Legal Pack. You must read the Legal Pack carefully before bidding.
Additional Information
For full details about all auction methods and sale types please refer to the Auction Conduct Guide which can be viewed on the SDL Property Auctions’ home page.
This guide includes details on the auction registration process, your payment obligations and how to view the Legal Pack.
Guide Price & Reserve Price
Each property sold is subject to a Reserve Price. The Reserve Price will be within + or – 10% of the Guide Price. The Guide Price is issued solely as a guide so that a buyer can consider whether or not to pursue their interest. A full definition can be found within the Buyers Terms.











