Residential Development
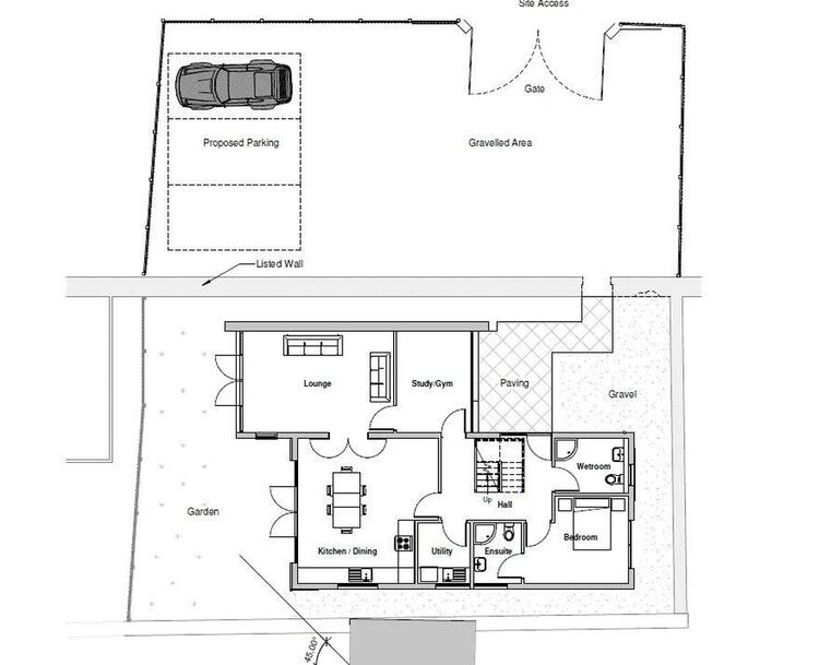
A building plot with full planning approval for a Contemporary design detached three bedroom dwelling(1,722 square feet) featuring, entrance hall, kitchen/diner and utility lounge, study, ground floor bedroom with en-suite and wet room. Two further en-suite first floor bedrooms and a landing reading room along with ample car parking space and rear garden grounds.
This building plot is located on the grounds of the historic Old Gaol offers a unique opportunity to develop a contemporary detached property within a very sought after up market area. We put the GDV at circa £500,000 depending on specification.
The plot is situated in Montgomery, the picturesque County Market Town close to the Welsh/English border.
The plot has a Grade II listed stone wall which made up some of the Old Gaol boundary and is to be retained within the development adding to the potential to create something special on the site.
We advise interested parties to inspect the legal pack along with the planning documentation available on the Powys County Council planning portal. Planning number 20/1826/FUL.
Services are believed to be available within the vicinity of the site, however, interested parties should independently satisfy themselves as to the availability and suitability of any services for their Specific requirement.
The site is sold subject to or with the benefit of any Rights of Way, Wayleaves, Easements, Restrictive Covenants, which may exist whether mentioned in these particulars or not. For further information in relation to these matters please refer to the legal pack.
Freehold. Vacant possession upon completion.
Auction Details
The sale of this property will take place on the stated date by way of Auction Event and is being sold as Unconditional with Fixed Fee (England and Wales).
Binding contracts of sale will be exchanged at the point of sale.
All sales are subject to SDL Property Auctions’ Buyers Terms.
Auction Deposit and Fees
The following deposits and non- refundable auctioneer’s fee apply:
• 10% deposit (subject to a minimum of £5,000)
• Buyer’s Fee of £1074 inc. VAT
The Buyer’s Fee does not contribute to the purchase price and will be considered as part of the chargeable consideration for the property in the calculation of stamp duty liability.
There may be additional fees listed in the Special Conditions of Sale, which will be available to view within the Legal Pack. You must read the Legal Pack carefully before bidding.
Additional Information
For full details about all auction methods and sale types please refer to the Auction Conduct Guide which can be viewed on the SDL Property Auctions’ home page.
This guide includes details on the auction registration process, your payment obligations and how to view the Legal Pack.
Guide Price & Reserve Price
Each property sold is subject to a Reserve Price. The Reserve Price will be within + or – 10% of the Guide Price. The Guide Price is issued solely as a guide so that a buyer can consider whether or not to pursue their interest. A full definition can be found within the Buyers Terms.






