Semi-detached house
A fantastic freehold refurbishment opportunity. If you're looking for a project with potential then look no further. This property will have massive appeal to investors, developers, builders and home owners.
This semi detached property has many original features and offers plenty of accommodation and opportunity. The house is situated in a very popular residential location and has excellent road links and many local amenities close by. There are two reception rooms, kitchen and two double bedrooms.
The property also appears to have had it's electrics and plumbing upgraded so some of the expense in refurbishing has already been completed. This will be an extremely popular lot in our November auction, viewing and registering to bid is very strongly recommended.
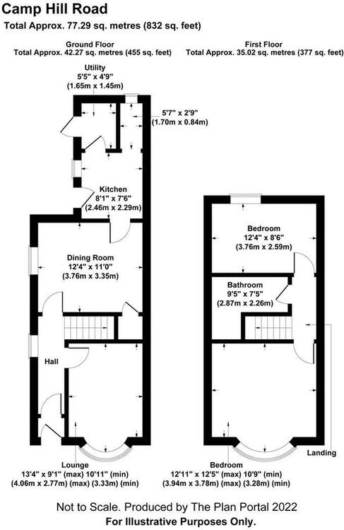
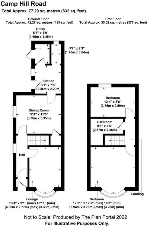
4.06m x 2.77m max into bay (13ft 4 x 9ft 1 max)
3.76m x 3.35m (12ft 4 x 11ft 0)
2.46m x 2.29m (8ft 1 x 7ft 6)
3.94m x 33.22m max into bay (12ft 11 x 10ft 9 max)
3.76m x 2.59m (12ft 4 x 8ft 6)
2.87m x 2.31m max (9ft 5 x 7ft 7 max)
Freehold. Vacant possession upon completion.
Auction Details
The sale of this property will take place on the stated date by way of Auction Event and is being sold as Unconditional with Fixed Fee (England and Wales).
Binding contracts of sale will be exchanged at the point of sale.
All sales are subject to SDL Property Auctions’ Buyers Terms.
Auction Deposit and Fees
The following deposits and non- refundable auctioneer’s fee apply:
• 10% deposit (subject to a minimum of £5,000)
• Buyer’s Fee of £1074 inc. VAT
The Buyer’s Fee does not contribute to the purchase price and will be considered as part of the chargeable consideration for the property in the calculation of stamp duty liability.
There may be additional fees listed in the Special Conditions of Sale, which will be available to view within the Legal Pack. You must read the Legal Pack carefully before bidding.
Additional Information
For full details about all auction methods and sale types please refer to the Auction Conduct Guide which can be viewed on the SDL Property Auctions’ home page.
This guide includes details on the auction registration process, your payment obligations and how to view the Legal Pack.
Guide Price & Reserve Price
Each property sold is subject to a Reserve Price. The Reserve Price will be within + or – 10% of the Guide Price. The Guide Price is issued solely as a guide so that a buyer can consider whether or not to pursue their interest. A full definition can be found within the Buyers Terms.
















