Commercial Property
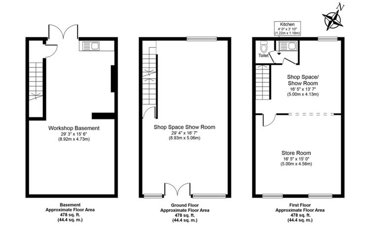
This is a rare opportunity to purchase a substantial and prominently positioned commercial property in the thriving town of New Mills. The property measures approximately 1,434 square feet and is coming to the market for the first time in over 30 years due to retirement. The internal area is arranged over three equally spacious floors consisting of a versatile basement workshop with vehicular access, shop space and show room to the ground floor and offices, W/C and storage to the first floor. The property also benefits from a substantial attic, offering potential to extend (subject to planning) as neighbouring properties have. Prospective buyers must make all necessary independent enquiries in this respect for their specific, intended use prior to placing their bid, as this will be binding.
The property is positioned within a mix of both residential and commercial units and is thought suitable for use as self-conta_https_sdl-hub.property-world.co.uk/skyco13/XIII-HUB-SDL-2/assets/pictures/dashboard.jpg?oneid=q_5yw1ined flats/HMO subject to any necessary consents or as a substantial commercial investment opportunity. Adjacent properties have already been converted from commercial into residential premises.
The property also benefits from on-street parking directly outside, with a forty minute time limit.
Locally, the area is well serviced with popular and convenient amenities as well as many popular walking routes such as Sett Valley Trail and Millennium walkway. Transport links include a popular local bus network, easy access to A6 road network and New Mills Central railway station which services both Manchester and Sheffield. Also within walking distance of the property (approx. 400 yards) is the Newtown station railway station servicing Buxton and Manchester, operating on a separate line.
Workshop
Sales areas/showroom
Office, W/C, Storage
Freehold. Vacant possession upon completion.
Auction Details
The sale of this property will take place on the stated date by way of Auction Event and is being sold as Unconditional with Variable Fee (England and Wales).
Binding contracts of sale will be exchanged at the point of sale.
All sales are subject to SDL Property Auctions’ Buyers Terms.
Auction Deposit and Fees
The following deposits and non- refundable auctioneer’s fees apply:
• 5% deposit (subject to a minimum of £5,000)
• Buyer’s Fee of 4.8% of the purchase price for properties sold for up to £250,000, or 3.6% of the purchase price for properties sold for over £250,000 (in all cases, subject to a minimum of £6,000 inc. VAT). For worked examples please refer to the Auction Conduct Guide.
The Buyer’s Fee does not contribute to the purchase price and will be considered as part of the chargeable consideration for the property in the calculation of stamp duty liability.
There may be additional fees listed in the Special Conditions of Sale, which will be available to view within the Legal Pack. You must read the Legal Pack carefully before bidding.
Additional Information
For full details about all auction methods and sale types please refer to the Auction Conduct Guide which can be viewed on the SDL Property Auctions’ home page.
This guide includes details on the auction registration process, your payment obligations and how to view the Legal Pack.
Guide Price & Reserve Price
Each property sold is subject to a Reserve Price. The Reserve Price will be within + or – 10% of the Guide Price. The Guide Price is issued solely as a guide so that a buyer can consider whether or not to pursue their interest. A full definition can be found within the Buyers Terms.




