Residential Development
A residential development site with full planning in Congleton, Cheshire extending to 2,443 square foot.
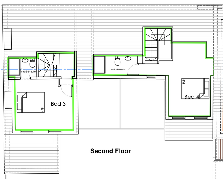
The properties include 2 and 4 Cross Street which benefit from full planning consent granted for redevelopment to provide one, three bedroomed dwelling and one, four bedroomed dwelling with the opportunity to further redevelop the properties to provide an overall nine unit co-living HMO investment opportunity. Prospective buyers are advised to make all necessary independent enquiries prior to placing their bid as this will be binding. The vendor has available profit and cost summaries, projected build costs and has undertaken comparable due diligence to support the asking price.
The property benefits from full planning consent granted 12/02/2021 - Planning Application Number: 20/1934C - for the refurbishment of existing dwellings at 2-4 Cross Street (including rear dormers) to provide one, three bedroomed dwelling and one, four bedroomed dwelling with the potential to convert to a nine bedroomed HMO, under permitted development rights from C3 to C4. Prospective buyers are advised to make all necessary independent enquiries prior to placing their bid as this will be binding.
The property is located fronting Cross Street in the centre of Congleton within close proximity of Bridestone Shopping Centre, including Morrisons superstore. Stockport is approximately 23 miles away, Macclesfield approximately 9 miles and the M60 approximately 22 miles.
The property will provide approx 2,443 gross floor area once the development is completed. Prospective buyers are advised to make all necessary independent enquiries prior to placing their bid as this will be binding.
Vendor has advised the Council Tax Band rating is A. Prospective buyers are advised to make any enquiries regarding Council Tax Band to local authority.
44.5 square metres/478 square feet
49.5 square metres/533 square feet
16 square metres/173 square feet
49 square metres/527 square feet
49 square metres/527 square feet
19 square metres/205 square feet
Please be advised that the auctioneers have not personally inspected the property. Prospective buyers are advised to make a viewing enquiry and any other necessary independent enquiries before placing their bid, as this will be binding.
Friday 17th June 10.30 – 13.00pm
Friday 24th June 12.30pm – 15.00pm
Please visit SDL Property Auctions website to book a viewing or call 0800 046 5454.
Freehold. Vacant possession upon completion.
Auction Details
The sale of this property will take place on the stated date by way of Auction Event and is being sold as Unconditional with Fixed Fee (England and Wales).
Binding contracts of sale will be exchanged at the point of sale.
All sales are subject to SDL Property Auctions’ Buyers Terms.
Auction Deposit and Fees
The following deposits and non- refundable auctioneer’s fee apply:
• 10% deposit (subject to a minimum of £5,000)
• Buyer’s Fee of £1074 inc. VAT
The Buyer’s Fee does not contribute to the purchase price and will be considered as part of the chargeable consideration for the property in the calculation of stamp duty liability.
There may be additional fees listed in the Special Conditions of Sale, which will be available to view within the Legal Pack. You must read the Legal Pack carefully before bidding.
Additional Information
For full details about all auction methods and sale types please refer to the Auction Conduct Guide which can be viewed on the SDL Property Auctions’ home page.
This guide includes details on the auction registration process, your payment obligations and how to view the Legal Pack.
Guide Price & Reserve Price
Each property sold is subject to a Reserve Price. The Reserve Price will be within + or – 10% of the Guide Price. The Guide Price is issued solely as a guide so that a buyer can consider whether or not to pursue their interest. A full definition can be found within the Buyers Terms.










