Bungalow
Please view the video tours to fully appreciate this rare and exciting residential redevelopment opportunity, situated in a highly desirable residential location, with stunning views to the front over fields towards the river, and being set in a mature site of approximately one-third of an acre with woodland to the rear.
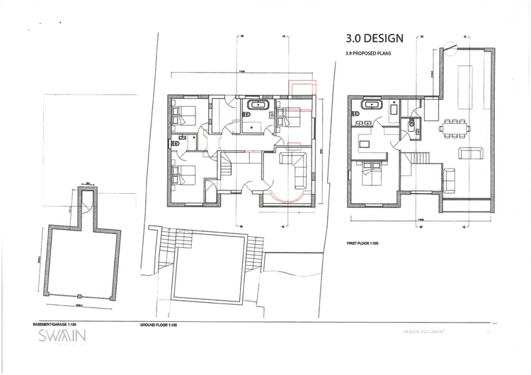
The Property - The existing bungalow is of a two-bedroomed design, but in accordance with the planning permission granted by Erewash Borough Council, under reference ERE/0919/0002, there is the opportunity to remodel and extend the existing bungalow to create a two-storey dwelling, with provision for a lift, plus space for a garage, thereby consisting of an increase in roof height to two-storey, with first floor to the front, together with side and rear extensions, double garage to the front, widening of the vehicular access, and alterations to the site topography, with land levels, and landscaping.
The existing bungalow enjoys mature gardens extending to approximately one-third of an acre with private woodland to the rear with secure gated access to Rigga Lane, and potential additional parking.
Location - The property would enjoy one of the areas premier residential locations, of a semi-rural nature with superb elevated views to the front over open countryside to the river and further countryside beyond, on the fringe of the sought-after town of Duffield, adjacent to the popular village of Little Eaton. The property would benefit from spacious mature grounds, on an incline, with private woodland to the rear adjoining Rigga Lane. Rigga Lane affords access to a footpath, which provides picturesque walks through Bluebell Woods.
The proposed dwelling will have living accommodation on the upper floors to command fine views. The property would be within easy access of both Little Eaton and Duffield, both having extremely good amenities to include, primary schools and the highly regard Ecclesbourne Secondary School at Duffield.
Please view the video tours to fully appreciate this rare and exciting residential redevelopment opportunity, situated in a highly desirable residential location, with stunning views to the front over fields towards the river, and being set in a mature site of approximately one-third of an acre with woodland to the rear.
Note: Please note that this property comes with an extended completion date, please check legal pack for details.
Double Garage with lift to the Reception Hall of the upper ground floor, and first floor.
Master Bedroom with En-Suite, a further Three Bedrooms, Family Bathroom, and Bedroom Five/Sitting Room
To make best use of the views would be Hallway, Cloaks/WC, stunning open-plan Living Dining Kitchen, further Bedroom, and Bathroom
The property would enjoy a site of approximately ONE-THIRD OF AN ACRE, including private woodland to the rear.
Planning Permission has also been granted to widen and deepen the existing driveway
Freehold. Vacant possession upon completion.
Viewings:
To book a viewing, please contact SDL Auctions to arrange.
Auction Method:
The auction for this property will take place as an “Auction Event” behind closed doors with a live auctioneer and will be streamed online in real-time. The property will be sold alongside several other lots. Bids must be placed remotely please see the below section on “Registration Process”. The auction can be watched in real-time on the auction date through SDL Auctions’ website on their home page.
The auction date applicable for the property is displayed underneath the property description. It is not possible to provide a precise timeslot when this property will be auctioned on the day, because there are other lots being sold.
You are required to undertake identity checks before you can be authorised to bid. You must also provide your payment details. If you do not provide this information, your registration will not be processed.
When you place your bid, you are deemed to have agreed to SDL Auctions’ Buyers Terms (England & Wales) which are available on SDL Auctions website.
Auction type- Unconditional with Variable Fee
If you are the highest bidder, you must exchange legally binding contracts for the sale when the auction for the property comes to an end. You must then pay the applicable fees and deposit. You must complete the sale within 20 business days unless the Special Conditions of Sale contained within the Legal Pack state otherwise.
Auction Fees
The following non-refundable fees apply:
Buyer’s Fee- payable on exchange of contracts. This is calculated as a percentage of the actual purchase price of the property. Either:
(a) 4.8% (including VAT) of the purchase price, for properties up to and including £250,000
(b) 3.6% (including VAT) of the purchase price for properties sold for over £250,000
The Buyer’s Fee is subject always to a minimum of £6,000 (including VAT). The Buyer’s Fee does not contribute to the purchase price.
There may be additional fees listed in the Special Conditions of Sale, which will be available to view within the Legal Pack. You must read the Special Conditions carefully before bidding. Any additional fees are included at the seller’s discretion, not on the instruction of SDL Auctions, and will be in addition to any fees payable to us. SDL Auctions has limited control over the content of the Special Conditions of Sale.
Deposit
On exchange of contracts, you must pay a non-refundable deposit equal to 5% of the actual purchase price of the property, subject to a minimum of £5,000. The deposit contributes towards the purchase price.
Payment Method:
Applicable fees must be paid immediately after a winning bid has been placed. Payment by cash or cheque will not be accepted. Prior to the auction, you will receive an email from the auctioneer to register your card details with third-party provider, Stripe. Your card details will be stored on their secure online payment platform. Payment will only be taken from you in the event of a winning bid. In this case, you will be contacted by a representative of the auctioneer to make payment. If you cannot be contacted within 24 hours after the auction ends, the auctioneer reserves the right to charge your card.
Legal Pack
Before bidding, you must view the legal pack for the property. This is the collection of legal documents that apply to the sale. The documents will include but are not limited to: Special Conditions of Sale, title documents from the Land Registry and Energy Performance Certificate.
The legal pack can be viewed on SDL Auctions website by searching for the property. On the property details page there is a sub-heading “Legal Packs”. Follow this link, and you will then be directed to create an account with Auction Passport to view the documents.
The legal pack can change at any time up until the auction starts so you must check for the most recent version of the legal pack. An addendum may be issued outlining any late changes. At the point of placing your bid, you are deemed to have read the legal pack in its entirety, including any changes. Failure to check for changes to the legal pack will not be a valid reason for withdrawing from the sale.
It is strongly recommended that you instruct a qualified professional to review the legal pack and raise any necessary enquiries before bidding.
Special Conditions of Sale
The property is sold subject to any Special Conditions of Sale. These are contractual conditions that are included by the seller of the property - they are not part of SDL Auctions’ terms and conditions. The Special Conditions of Sale are legally binding. You are taken to have read and accepted these at the point of bidding, even if you have not done so. The Special Conditions of Sale are available to read in the legal pack.
Registration Process:
To register to bid on the property, visit the SDL Auctions website and submit your remote bid. The lot number can be found against the Lot Details of the property. Prospective buyers must register no later than 12pm the day before the auction date. If you register after the cut-off, it cannot be guaranteed that your registration will be processed.

























