Land
RAFT DETAILS
A superb development opportunity to acquire a development site with planning permission granted for the erection of 4 x two bedroomed apartments with parking.
Planning was granted by Hull City Council under Ref 20/00857/FUL dated 3rd March 2021.
The development will comprise of a two and half storey building containing four luxury two bedroomed apartments over the first and second floor and covered parking to the ground floor.
A great build to rent opportunity or individual re-sale.
A superb letting location which is equidistant to the city centre and University. A further array of shops, bars and restaurants only a few minutes away on Newlands Avenue.
A great letting location for the University of Hull with potential rental income to students of £40,000 per annum inclusive.
The auctioneers have not inspected the site.
Parking for five cars.
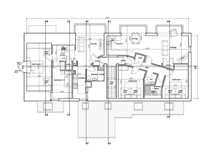
Consisting of -
Hall
Open Plan Lounge/Kitchen/Diner
Shower Room/wc
Bedroom One
Bedroom Two
Study/Bedroom Three
Hall
Cloakroom/wc
Open Plan Lounge/Kitchen/Diner
Bedroom One
Bedroom Two
Shower Room
Consisting of -
Hall
Cloakroom/wc
Open Plan Lounge/Kitchen/Diner
Bedroom One
Bedroom Two
Study/Bedroom Three
Shower Room
Hall
Cloakroom/wc
Open Plan Lounge/Kitchen/Diner
Bedroom One
Bedroom Two
Shower Room
We believe there maybe Japanese Knotweed on site. Interested parties are to rely on their own investigations.
Planning was granted by Hull City Council under Ref 20/00857/FUL dated 3rd March 2021. Interested parties are advised to inspect the legal and planning documents as to the suitability of the approval.
The site is sold subject to or with the benefit of any Rights of Way, Wayleaves, Easements, Restrictive Covenants, which may exist whether mentioned in these particulars or not. For further information in relation to these matters please refer to the legal pack.
Freehold. Vacant possession upon completion.
Viewings:
To book a viewing, please contact SDL Auctions to arrange.
Auction Method:
The auction for this property will take place as an “Auction Event” behind closed doors with a live auctioneer and will be streamed online in real-time. The property will be sold alongside several other lots. Bids must be placed remotely please see the below section on “Registration Process”. The auction can be watched in real-time on the auction date through SDL Auctions’ website on their home page.
The auction date applicable for the property is displayed underneath the property description. It is not possible to provide a precise timeslot when this property will be auctioned on the day, because there are other lots being sold.
You are required to undertake identity checks before you can be authorised to bid. You must also provide your payment details. If you do not provide this information, your registration will not be processed.
When you place your bid, you are deemed to have agreed to SDL Auctions’ Buyers Terms (England & Wales) which are available on SDL Auctions website.
Auction type- Unconditional with Variable Fee
If you are the highest bidder, you must exchange legally binding contracts for the sale when the auction for the property comes to an end. You must then pay the applicable fees and deposit. You must complete the sale within 20 business days unless the Special Conditions of Sale contained within the Legal Pack state otherwise.
Auction Fees
The following non-refundable fees apply:
Buyer’s Fee- payable on exchange of contracts. This is calculated as a percentage of the actual purchase price of the property. Either:
(a) 4.8% (including VAT) of the purchase price, for properties up to and including £250,000
(b) 3.6% (including VAT) of the purchase price for properties sold for over £250,000
The Buyer’s Fee is subject always to a minimum of £6,000 (including VAT). The Buyer’s Fee does not contribute to the purchase price.
There may be additional fees listed in the Special Conditions of Sale, which will be available to view within the Legal Pack. You must read the Special Conditions carefully before bidding. Any additional fees are included at the seller’s discretion, not on the instruction of SDL Auctions, and will be in addition to any fees payable to us. SDL Auctions has limited control over the content of the Special Conditions of Sale.
Deposit
On exchange of contracts, you must pay a non-refundable deposit equal to 5% of the actual purchase price of the property, subject to a minimum of £5,000. The deposit contributes towards the purchase price.
Payment Method:
Applicable fees must be paid immediately after a winning bid has been placed. Payment by cash or cheque will not be accepted. Prior to the auction, you will receive an email from the auctioneer to register your card details with third-party provider, Stripe. Your card details will be stored on their secure online payment platform. Payment will only be taken from you in the event of a winning bid. In this case, you will be contacted by a representative of the auctioneer to make payment. If you cannot be contacted within 24 hours after the auction ends, the auctioneer reserves the right to charge your card.
Legal Pack
Before bidding, you must view the legal pack for the property. This is the collection of legal documents that apply to the sale. The documents will include but are not limited to: Special Conditions of Sale, title documents from the Land Registry and Energy Performance Certificate.
The legal pack can be viewed on SDL Auctions website by searching for the property. On the property details page there is a sub-heading “Legal Packs”. Follow this link, and you will then be directed to create an account with Auction Passport to view the documents.
The legal pack can change at any time up until the auction starts so you must check for the most recent version of the legal pack. An addendum may be issued outlining any late changes. At the point of placing your bid, you are deemed to have read the legal pack in its entirety, including any changes. Failure to check for changes to the legal pack will not be a valid reason for withdrawing from the sale.
It is strongly recommended that you instruct a qualified professional to review the legal pack and raise any necessary enquiries before bidding.
Special Conditions of Sale
The property is sold subject to any Special Conditions of Sale. These are contractual conditions that are included by the seller of the property - they are not part of SDL Auctions’ terms and conditions. The Special Conditions of Sale are legally binding. You are taken to have read and accepted these at the point of bidding, even if you have not done so. The Special Conditions of Sale are available to read in the legal pack.
Registration Process:
To register to bid on the property, visit the SDL Auctions website and submit your remote bid. The lot number can be found against the Lot Details of the property. Prospective buyers must register no later than 12pm the day before the auction date. If you register after the cut-off, it cannot be guaranteed that your registration will be processed.







